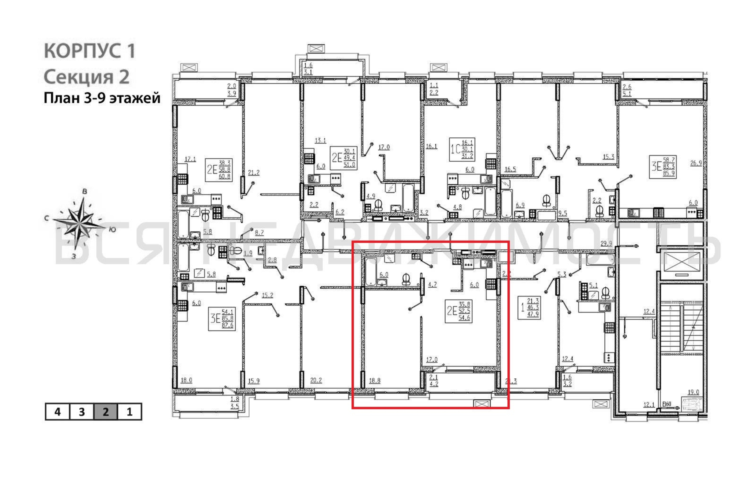
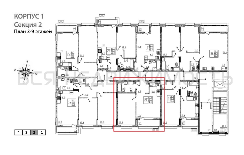
1-комнатная квартира, 54.60 м² 8/9 этаж ID объекта 100137174
Отрадное, Родниковая ул.,
Инфраструктура поблизости
Базовая цена:
5 241 600 ₽
99 840 ₽/м²
Семейная ипотека
от 25 141 ₽/мес
Ипотека
от 61 312 ₽/мес
? Расчет цены приблизительный, за более точной информацией обращайтесь к менеджеру
Тип сделкиПервичная продажа
Общая площадь52.50 м²
Строительная площадь54.60 м²
Жилая площадь18.80 м²
Площадь кухни23.00 м²
Высота потолков2.74 м
ОтделкаПредчистовая отделка
СанузелСовмещенный
КладовкаНет
ЛифтДа
Изолированные комнатыДа
Онлайн показДа



