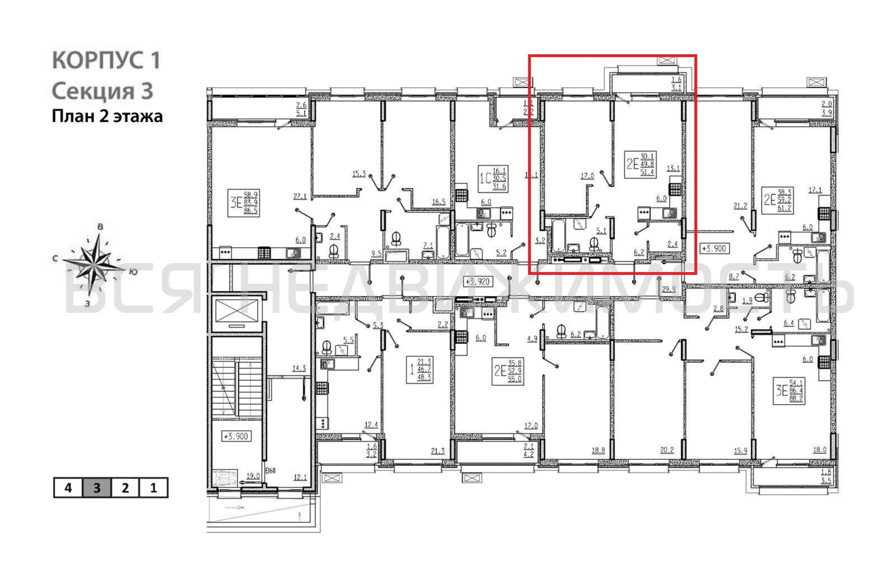
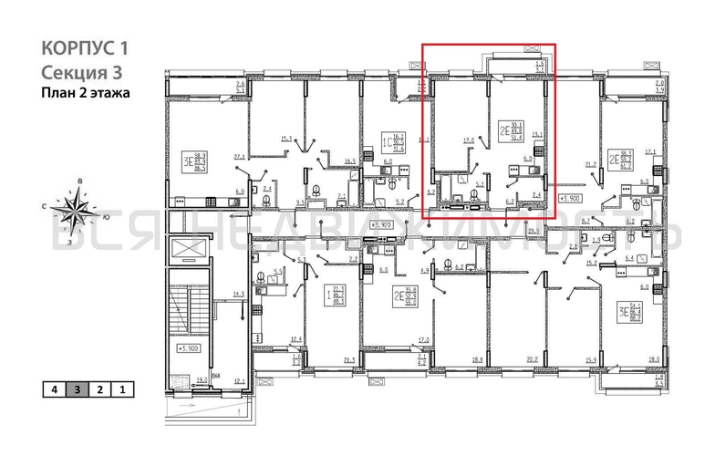
1-комнатная квартира, 51.40 м² 2/9 этаж ID объекта 100137189
Отрадное, Родниковая ул.,
Инфраструктура поблизости
Базовая цена:
4 934 400 ₽
99 084 ₽/м²
Семейная ипотека
от 23 667 ₽/мес
Ипотека
от 57 718 ₽/мес
? Расчет цены приблизительный, за более точной информацией обращайтесь к менеджеру
Тип сделкиПервичная продажа
Общая площадь49.80 м²
Строительная площадь51.40 м²
Жилая площадь17.00 м²
Площадь кухни19.10 м²
Высота потолков2.74 м
ОтделкаПредчистовая отделка
СанузелСовмещенный
КладовкаДа
ЛифтДа
Изолированные комнатыДа
Онлайн показДа



