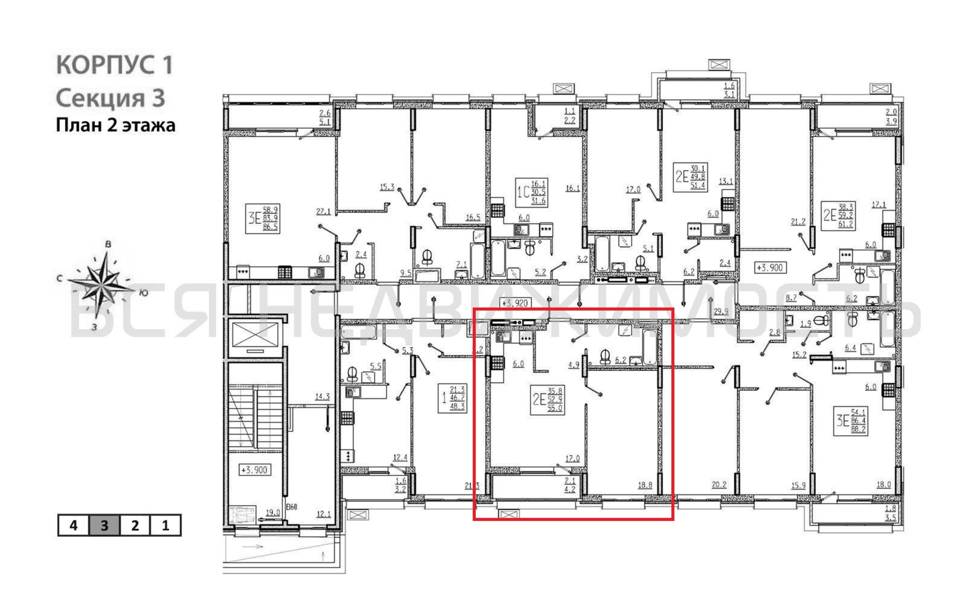
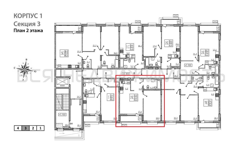
1-комнатная квартира, 55.00 м² 2/9 этаж ID объекта 100137192
Отрадное, Родниковая ул.,
Инфраструктура поблизости
Базовая цена:
5 280 000 ₽
99 811 ₽/м²
Семейная ипотека
от 25 325 ₽/мес
Ипотека
от 61 761 ₽/мес
? Расчет цены приблизительный, за более точной информацией обращайтесь к менеджеру
Тип сделкиПервичная продажа
Общая площадь52.90 м²
Строительная площадь55.00 м²
Жилая площадь18.80 м²
Площадь кухни23.00 м²
Высота потолков2.74 м
ОтделкаПредчистовая отделка
СанузелСовмещенный
КладовкаНет
ЛифтДа
Изолированные комнатыДа
Онлайн показДа



