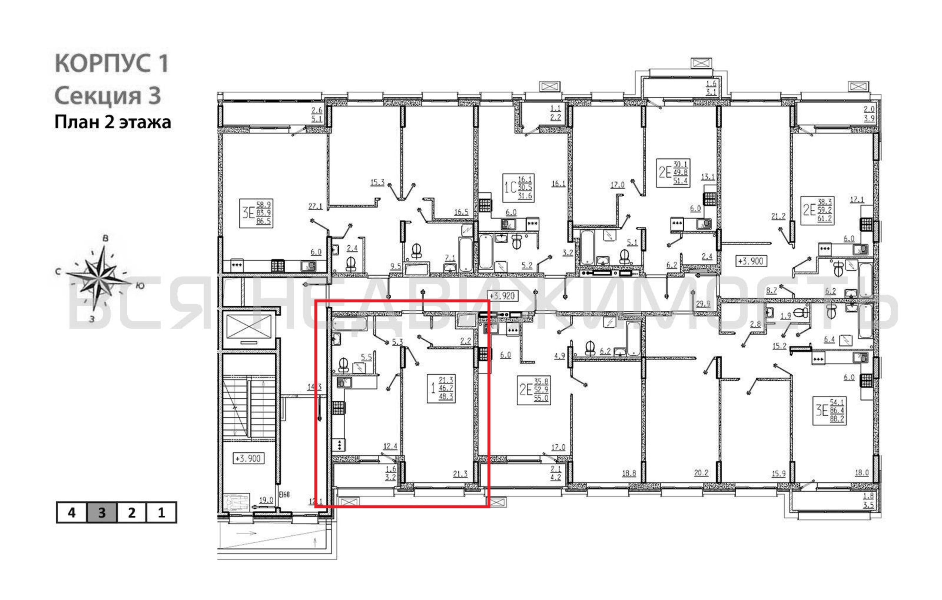
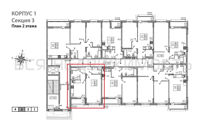
1-комнатная квартира, 48.30 м² 2/9 этаж ID объекта 100137193
Отрадное, Родниковая ул.,
Инфраструктура поблизости
Базовая цена:
4 540 200 ₽
97 221 ₽/м²
Семейная ипотека
от 21 777 ₽/мес
Ипотека
от 53 107 ₽/мес
? Расчет цены приблизительный, за более точной информацией обращайтесь к менеджеру
Тип сделкиПервичная продажа
Общая площадь46.70 м²
Строительная площадь48.30 м²
Жилая площадь21.30 м²
Площадь кухни12.40 м²
Высота потолков2.74 м
ОтделкаПредчистовая отделка
СанузелСовмещенный
КладовкаДа
ЛифтДа
Изолированные комнатыДа
Онлайн показДа



