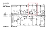
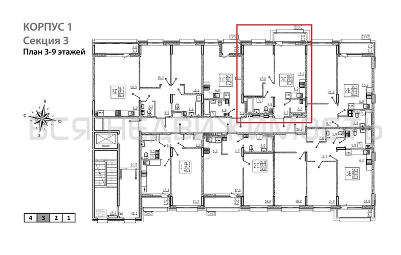
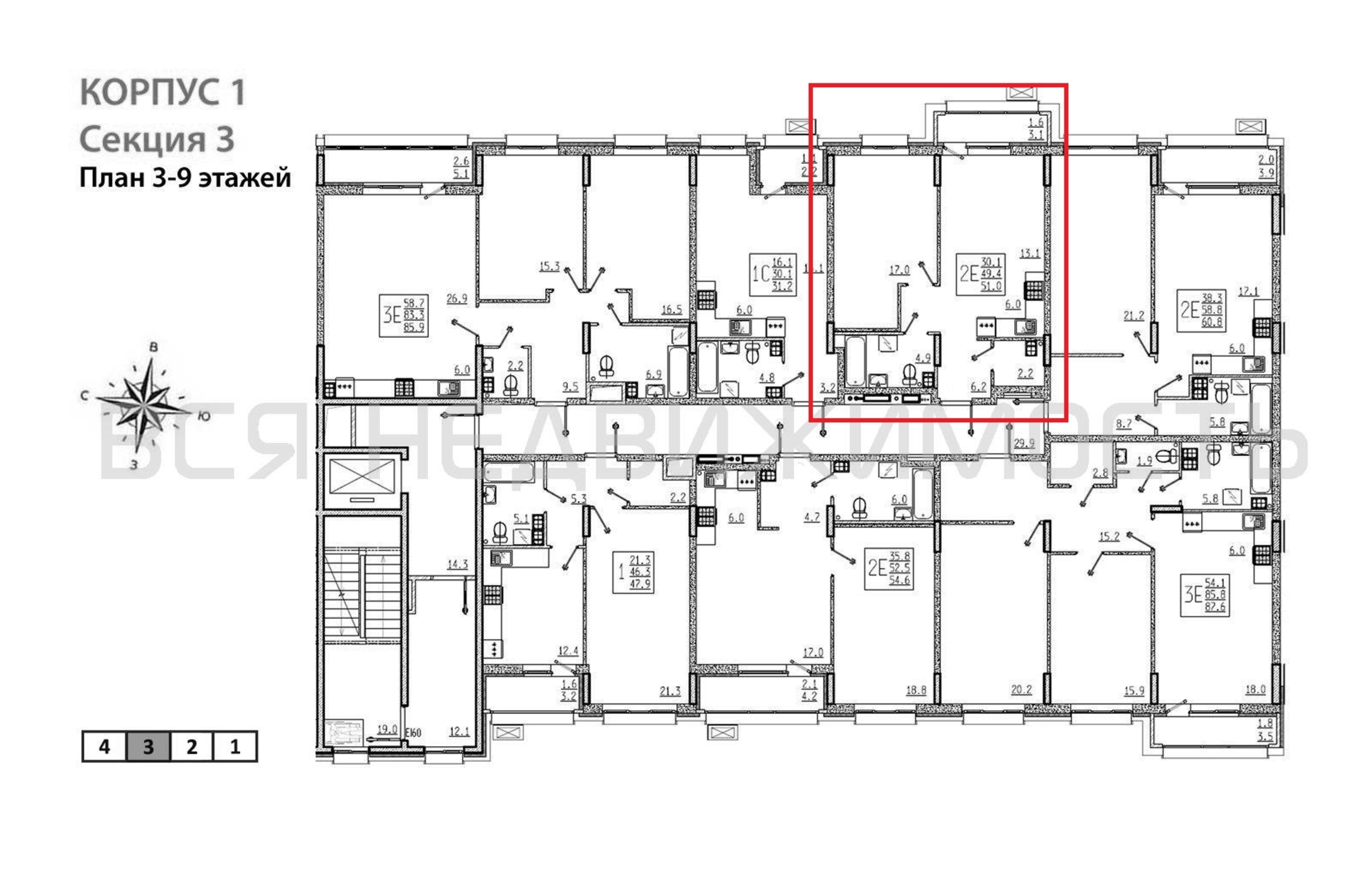
1-комнатная квартира, 51.00 м² 3/9 этаж ID объекта 100137196
Отрадное, Родниковая ул.,
Инфраструктура поблизости
Базовая цена:
4 896 000 ₽
99 109 ₽/м²
Семейная ипотека
от 23 483 ₽/мес
Ипотека
от 57 269 ₽/мес
? Расчет цены приблизительный, за более точной информацией обращайтесь к менеджеру
Тип сделкиПервичная продажа
Общая площадь49.40 м²
Строительная площадь51.00 м²
Жилая площадь17.00 м²
Площадь кухни19.10 м²
Высота потолков2.74 м
ОтделкаПредчистовая отделка
СанузелСовмещенный
КладовкаДа
ЛифтДа
Изолированные комнатыДа
Онлайн показДа



