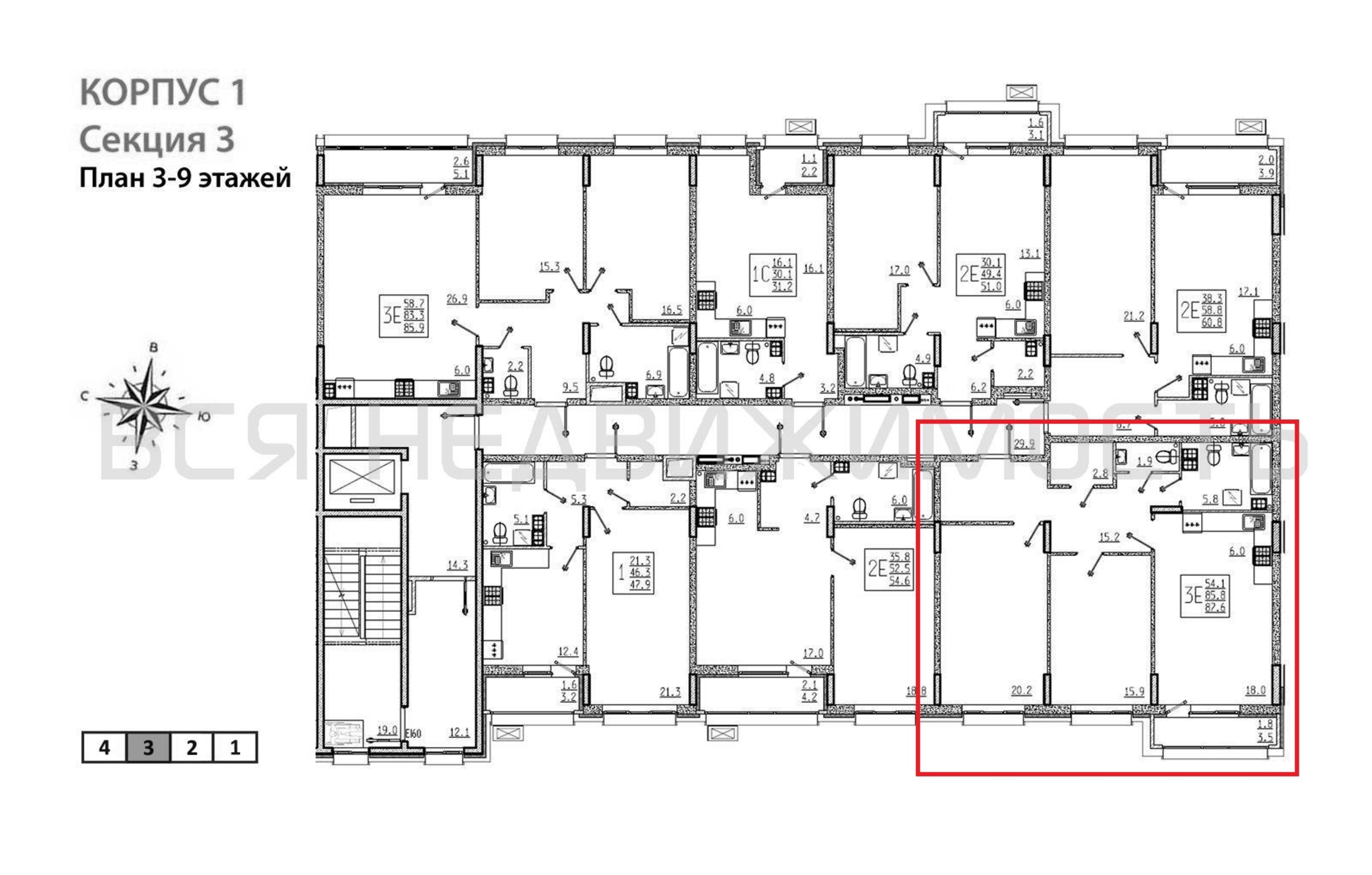
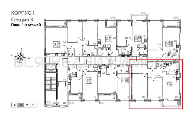
2-комнатная квартира, 87.60 м² 7/9 этаж ID объекта 100137226
Отрадное, Родниковая ул.,
Инфраструктура поблизости
Базовая цена:
7 971 600 ₽
92 909 ₽/м²
Семейная ипотека
от 38 235 ₽/мес
Ипотека
от 93 245 ₽/мес
? Расчет цены приблизительный, за более точной информацией обращайтесь к менеджеру
Тип сделкиПервичная продажа
Общая площадь85.80 м²
Строительная площадь87.60 м²
Жилая площадь36.10 м²
Площадь кухни24.00 м²
Высота потолков2.74 м
ОтделкаПредчистовая отделка
СанузелНесколько
КладовкаДа
ЛифтДа
Изолированные комнатыДа
Онлайн показДа



