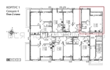
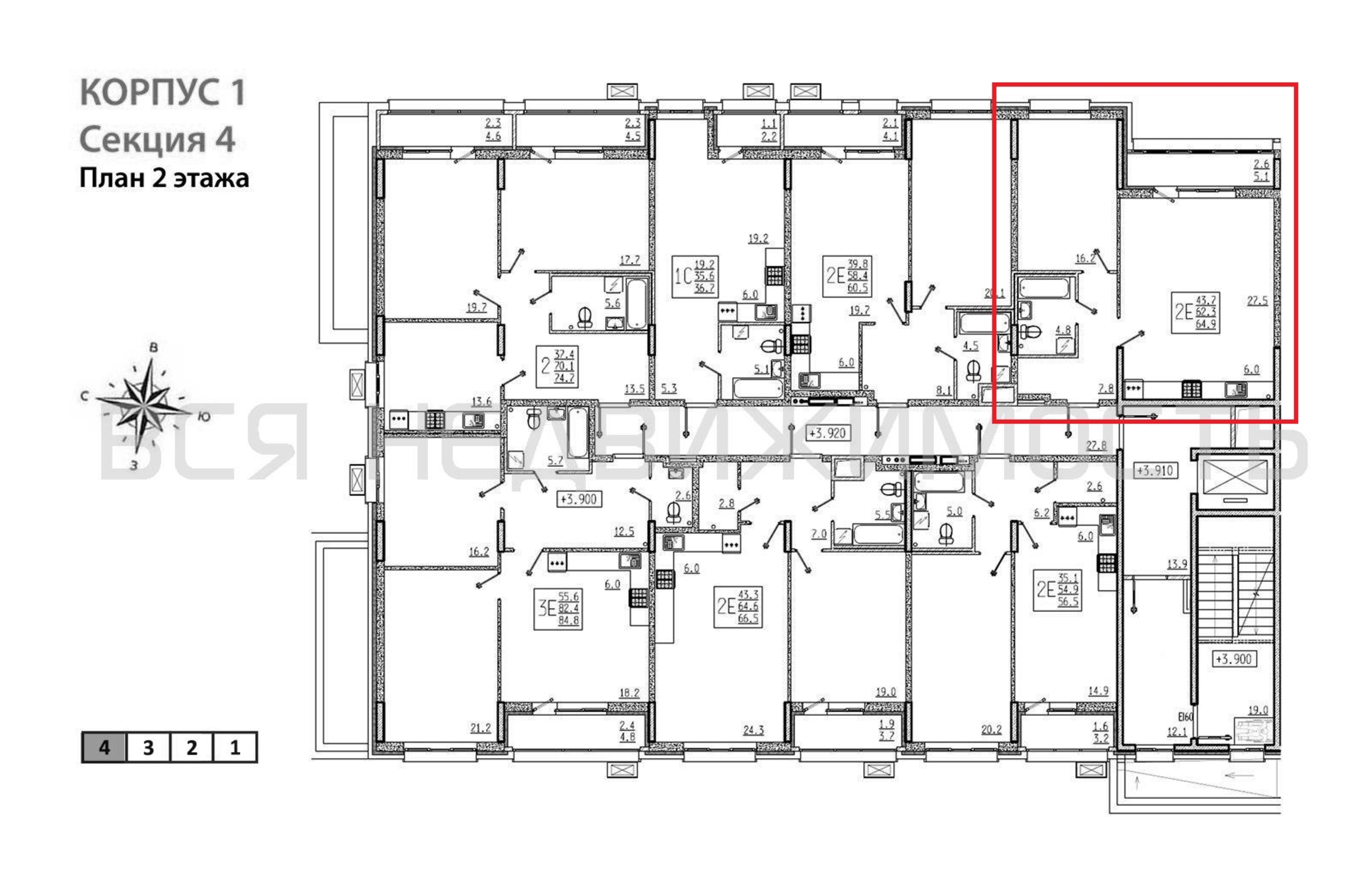
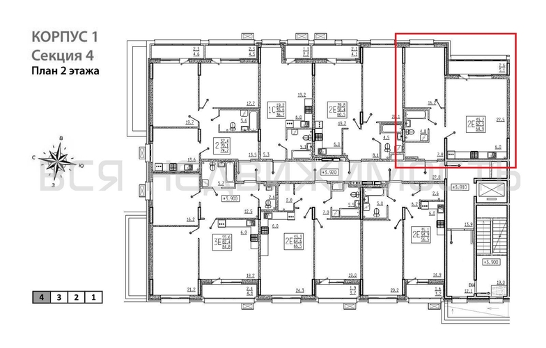
1-комнатная квартира, 64.90 м² 2/9 этаж ID объекта 100137249
Отрадное, Родниковая ул.,
Инфраструктура поблизости
Базовая цена:
5 905 900 ₽
94 798 ₽/м²
Семейная ипотека
от 28 327 ₽/мес
Ипотека
от 69 082 ₽/мес
? Расчет цены приблизительный, за более точной информацией обращайтесь к менеджеру
Тип сделкиПервичная продажа
Общая площадь62.30 м²
Строительная площадь64.90 м²
Жилая площадь16.20 м²
Площадь кухни33.50 м²
Высота потолков2.74 м
ОтделкаПредчистовая отделка
СанузелСовмещенный
КладовкаНет
ЛифтДа
Изолированные комнатыДа
Онлайн показДа



