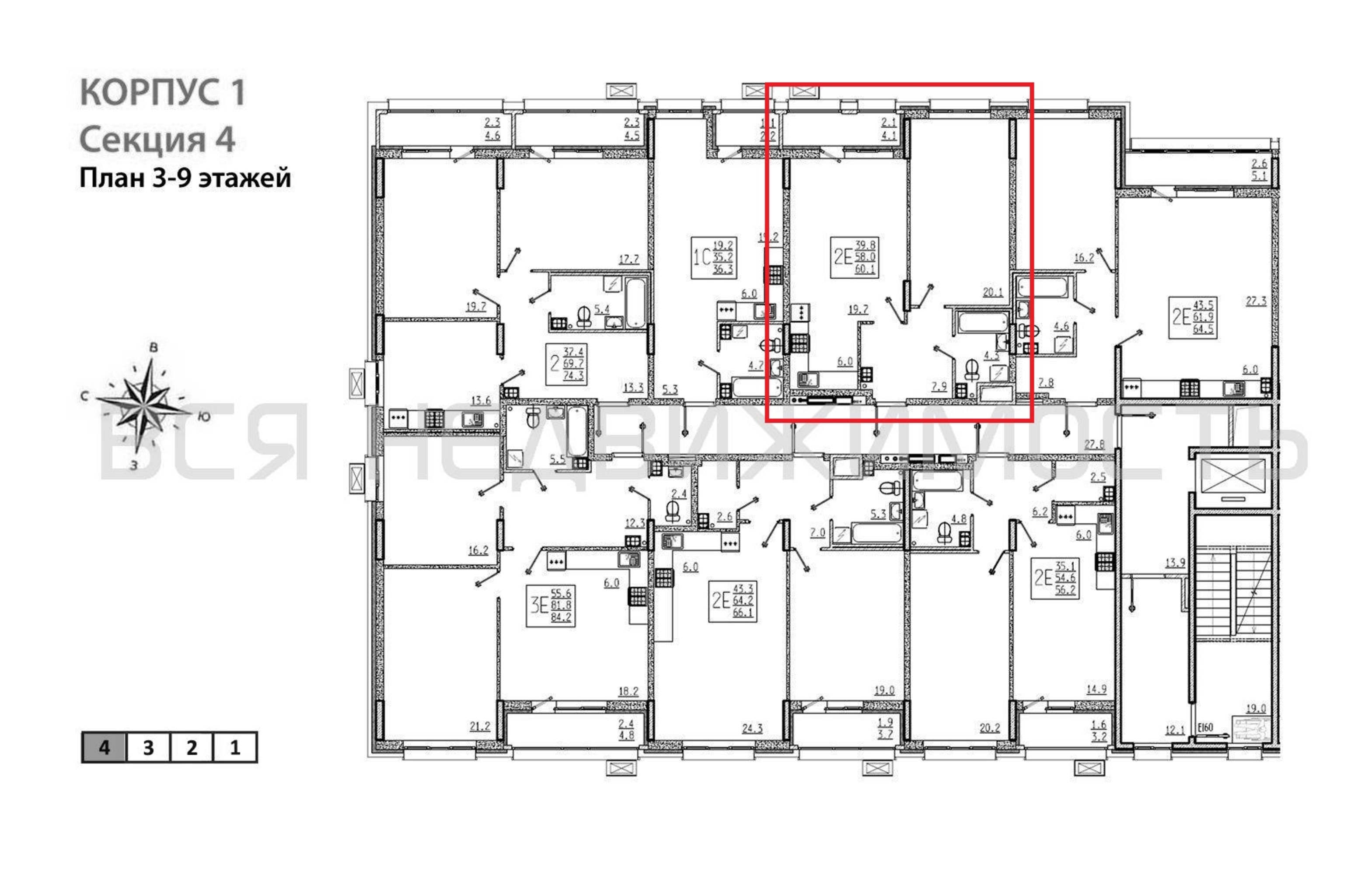
1-комнатная квартира, 60.10 м² 3/9 этаж ID объекта 100137255
Отрадное, Родниковая ул.,
Инфраструктура поблизости
Базовая цена:
5 589 300 ₽
96 367 ₽/м²
Семейная ипотека
от 26 809 ₽/мес
Ипотека
от 65 379 ₽/мес
? Расчет цены приблизительный, за более точной информацией обращайтесь к менеджеру
Тип сделкиПервичная продажа
Общая площадь58.00 м²
Строительная площадь60.10 м²
Жилая площадь20.10 м²
Площадь кухни25.70 м²
Высота потолков2.74 м
ОтделкаПредчистовая отделка
СанузелСовмещенный
КладовкаНет
ЛифтДа
Изолированные комнатыДа
Онлайн показДа



