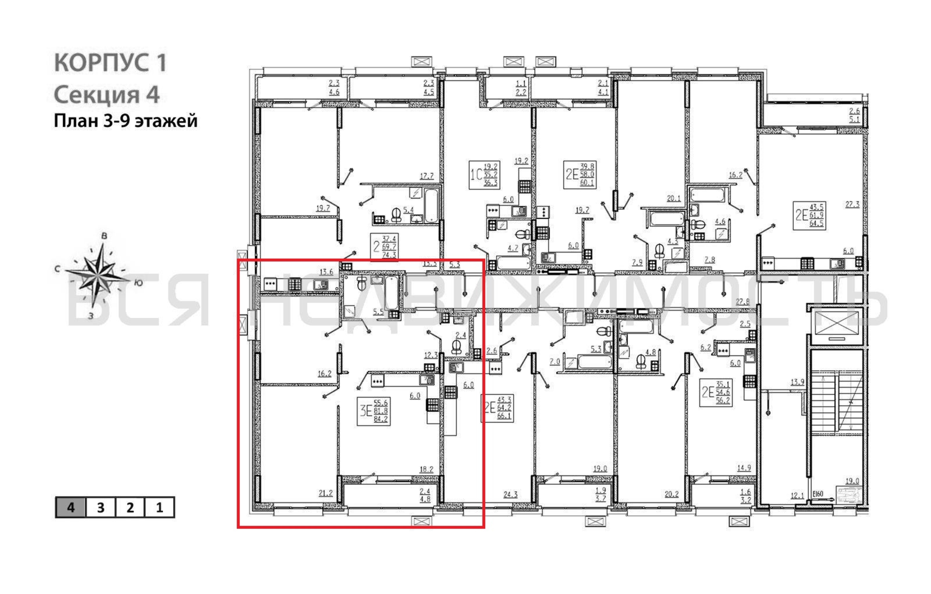
2-комнатная квартира, 84.20 м² 7/9 этаж ID объекта 100137280
Отрадное, Родниковая ул.,
Инфраструктура поблизости
Базовая цена:
7 662 200 ₽
93 670 ₽/м²
Семейная ипотека
от 36 751 ₽/мес
Ипотека
от 89 626 ₽/мес
? Расчет цены приблизительный, за более точной информацией обращайтесь к менеджеру
Тип сделкиПервичная продажа
Общая площадь81.80 м²
Строительная площадь84.20 м²
Жилая площадь37.40 м²
Площадь кухни24.20 м²
Высота потолков2.74 м
ОтделкаПредчистовая отделка
СанузелРаздельный
КладовкаНет
ЛифтДа
Изолированные комнатыНет
Онлайн показДа



