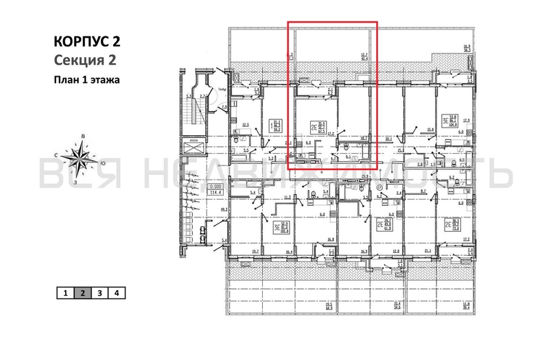
1-комнатная квартира, 67.50 м² 1/9 этаж ID объекта 100137384
Отрадное, Родниковая ул.,
Инфраструктура поблизости
Базовая цена:
6 210 000 ₽
117 837 ₽/м²
Семейная ипотека
от 29 786 ₽/мес
Ипотека
от 72 639 ₽/мес
? Расчет цены приблизительный, за более точной информацией обращайтесь к менеджеру
Тип сделкиПервичная продажа
Общая площадь52.70 м²
Строительная площадь67.50 м²
Жилая площадь18.70 м²
Площадь кухни23.20 м²
Высота потолков2.74 м
ОтделкаПредчистовая отделка
СанузелСовмещенный
БалконЛоджия + терраса
КладовкаНет
ЛифтДа
Изолированные комнатыДа
Онлайн показДа



