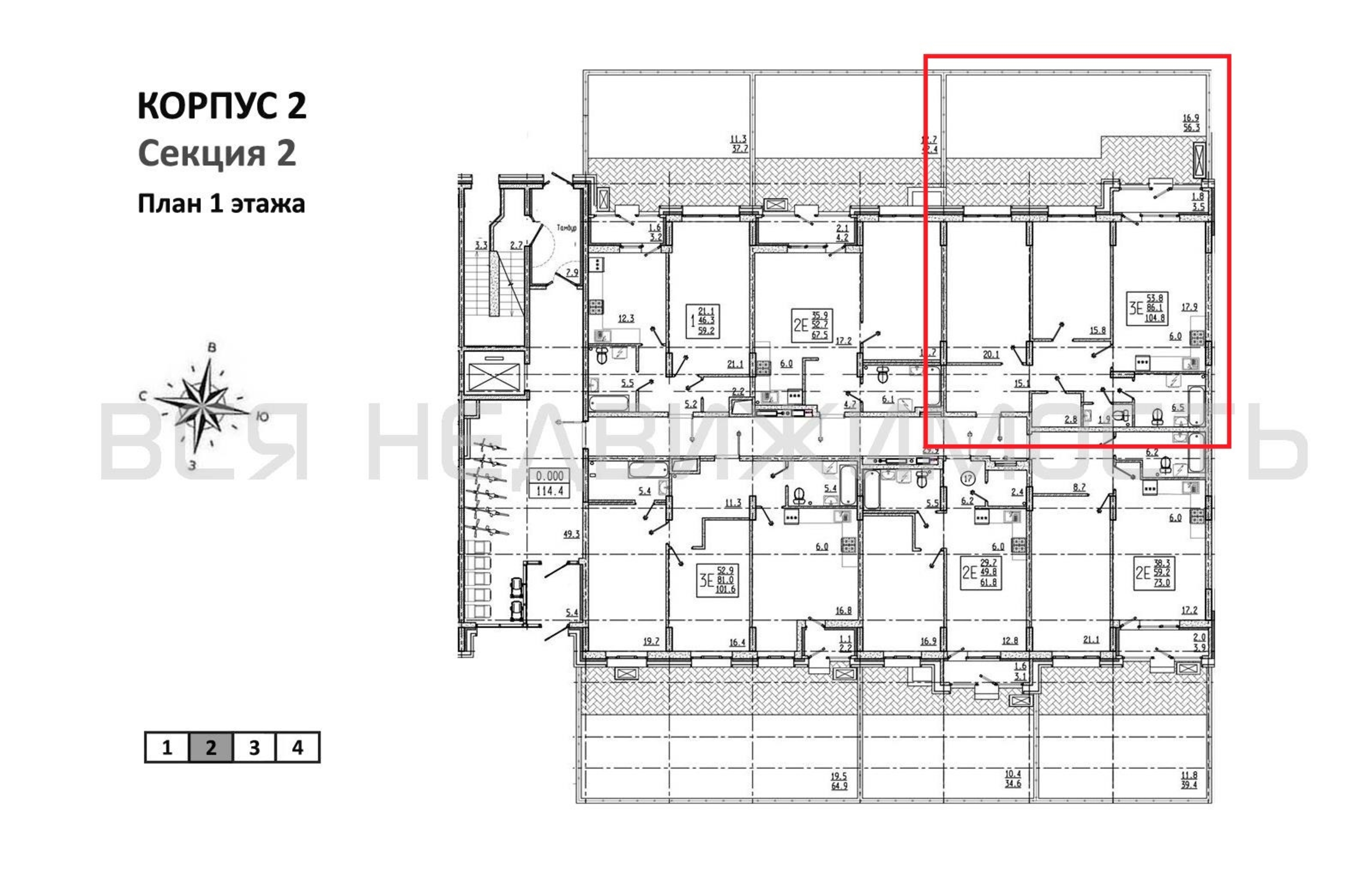
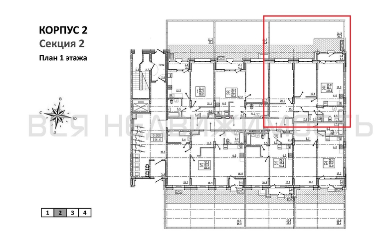
2-комнатная квартира, 104.80 м² 1/9 этаж ID объекта 100137385
Отрадное, Родниковая ул.,
Инфраструктура поблизости
Базовая цена:
9 432 000 ₽
109 547 ₽/м²
Семейная ипотека
от 45 240 ₽/мес
Ипотека
от 110 327 ₽/мес
? Расчет цены приблизительный, за более точной информацией обращайтесь к менеджеру
Тип сделкиПервичная продажа
Общая площадь86.10 м²
Строительная площадь104.80 м²
Жилая площадь35.90 м²
Площадь кухни23.90 м²
Высота потолков2.74 м
ОтделкаПредчистовая отделка
СанузелНесколько
БалконЛоджия + терраса
КладовкаДа
ЛифтДа
Изолированные комнатыДа
Онлайн показДа



