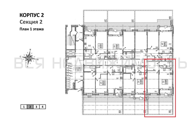
1-комнатная квартира, 73.00 м² 1/9 этаж ID объекта 100137386
Отрадное, Родниковая ул.,
Инфраструктура поблизости
Базовая цена:
6 716 000 ₽
113 446 ₽/м²
Семейная ипотека
от 32 213 ₽/мес
Ипотека
от 78 558 ₽/мес
? Расчет цены приблизительный, за более точной информацией обращайтесь к менеджеру
Тип сделкиПервичная продажа
Общая площадь59.20 м²
Строительная площадь73.00 м²
Жилая площадь21.10 м²
Площадь кухни23.20 м²
Высота потолков2.74 м
ОтделкаПредчистовая отделка
СанузелСовмещенный
БалконЛоджия + терраса
КладовкаНет
ЛифтДа
Изолированные комнатыДа
Онлайн показДа



