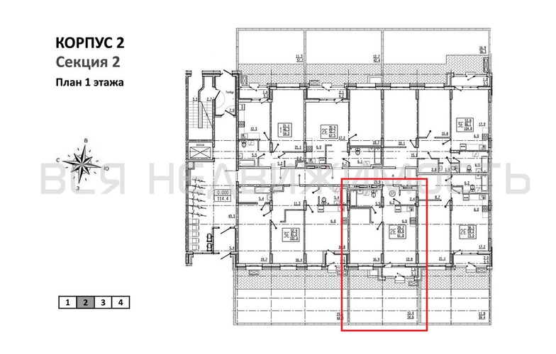
1-комнатная квартира, 61.80 м² 1/9 этаж ID объекта 100137387
Отрадное, Родниковая ул.,
Инфраструктура поблизости
Базовая цена:
5 747 400 ₽
115 410 ₽/м²
Семейная ипотека
от 27 567 ₽/мес
Ипотека
от 67 228 ₽/мес
? Расчет цены приблизительный, за более точной информацией обращайтесь к менеджеру
Тип сделкиПервичная продажа
Общая площадь49.80 м²
Строительная площадь61.80 м²
Жилая площадь16.90 м²
Площадь кухни18.80 м²
Высота потолков2.74 м
ОтделкаПредчистовая отделка
СанузелСовмещенный
БалконЛоджия + терраса
КладовкаДа
ЛифтДа
Изолированные комнатыДа
Онлайн показДа



