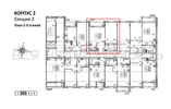
1-комнатная квартира, 54.40 м² 9/9 этаж ID объекта 100137418
Отрадное, Родниковая ул.,
Инфраструктура поблизости
Базовая цена:
5 222 400 ₽
99 855 ₽/м²
Семейная ипотека
от 25 049 ₽/мес
Ипотека
от 61 087 ₽/мес
? Расчет цены приблизительный, за более точной информацией обращайтесь к менеджеру
Тип сделкиПервичная продажа
Общая площадь52.30 м²
Строительная площадь54.40 м²
Жилая площадь18.80 м²
Площадь кухни23.00 м²
Высота потолков2.74 м
ОтделкаПредчистовая отделка
СанузелСовмещенный
КладовкаНет
ЛифтДа
Изолированные комнатыДа
Онлайн показДа



