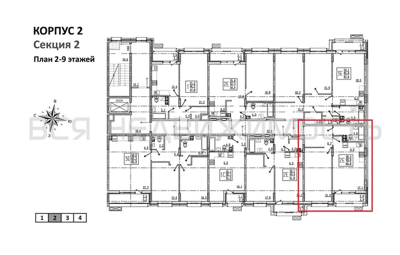
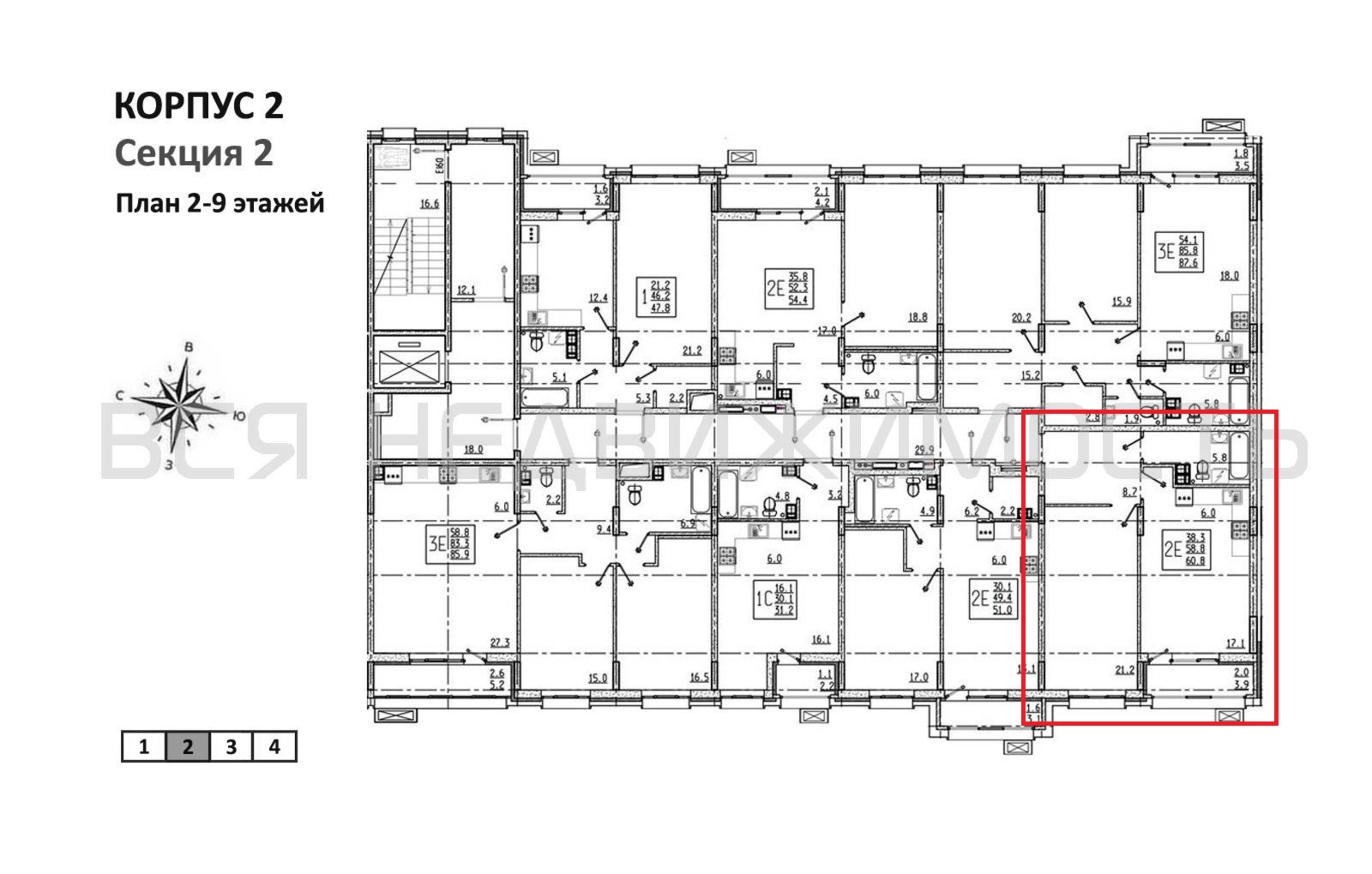
1-комнатная квартира, 60.80 м² 9/9 этаж ID объекта 100137420
Отрадное, Родниковая ул.,
Инфраструктура поблизости
Базовая цена:
5 654 400 ₽
96 163 ₽/м²
Семейная ипотека
от 27 121 ₽/мес
Ипотека
от 66 140 ₽/мес
? Расчет цены приблизительный, за более точной информацией обращайтесь к менеджеру
Тип сделкиПервичная продажа
Общая площадь58.80 м²
Строительная площадь60.80 м²
Жилая площадь21.20 м²
Площадь кухни23.10 м²
Высота потолков2.74 м
ОтделкаПредчистовая отделка
СанузелСовмещенный
КладовкаНет
ЛифтДа
Изолированные комнатыДа
Онлайн показДа



