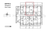
1-комнатная квартира, 76.20 м² 1/9 этаж ID объекта 100137487
Отрадное, Родниковая ул.,
Инфраструктура поблизости
Базовая цена:
6 781 800 ₽
105 966 ₽/м²
Семейная ипотека
от 32 528 ₽/мес
Ипотека
от 79 328 ₽/мес
? Расчет цены приблизительный, за более точной информацией обращайтесь к менеджеру
Тип сделкиПервичная продажа
Общая площадь64.00 м²
Строительная площадь76.20 м²
Жилая площадь18.70 м²
Площадь кухни30.20 м²
Высота потолков2.74 м
ОтделкаПредчистовая отделка
СанузелСовмещенный
БалконЛоджия + терраса
КладовкаДа
ЛифтДа
Изолированные комнатыДа
Онлайн показДа



