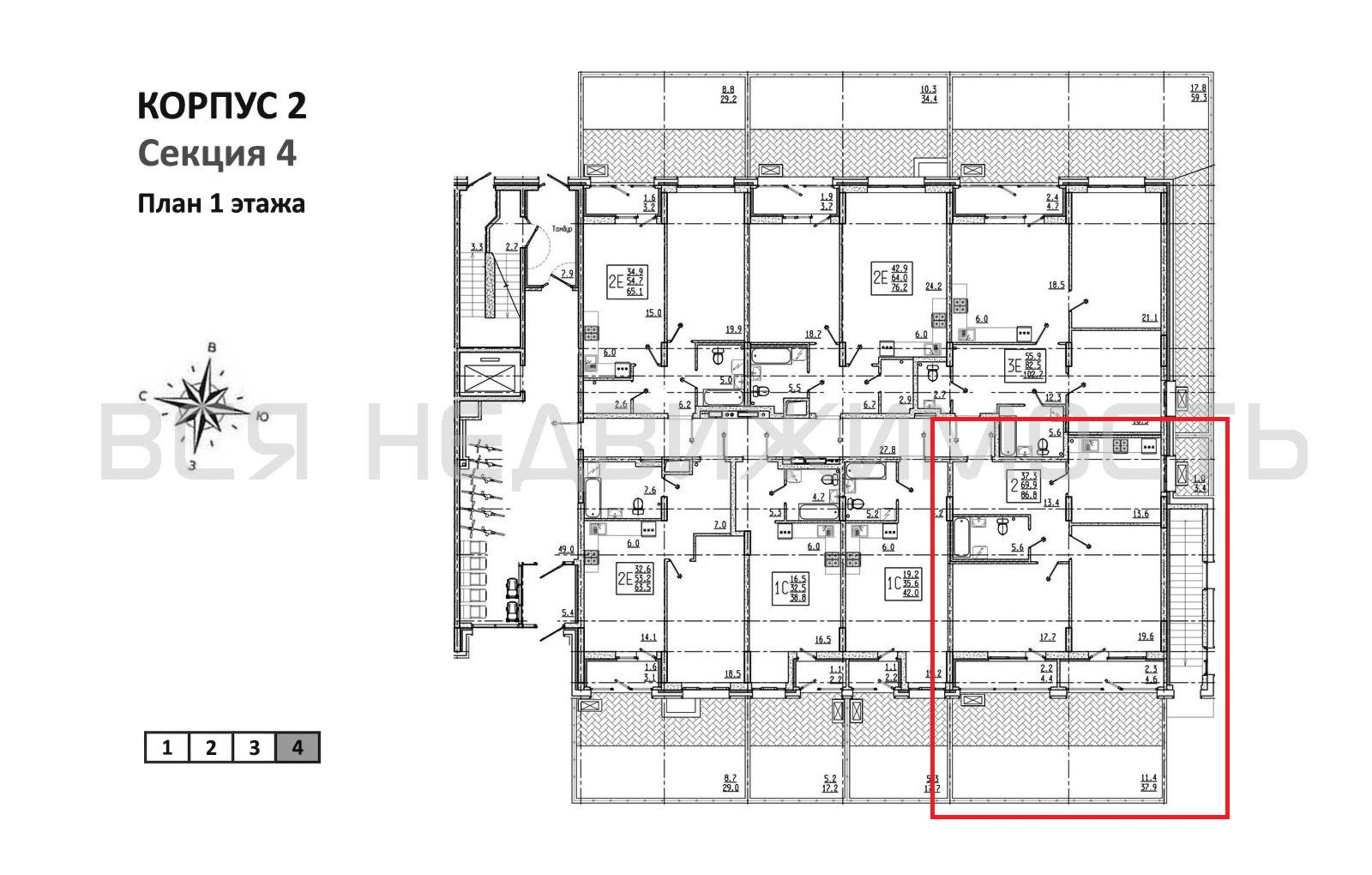
2-комнатная квартира, 86.80 м² 1/9 этаж ID объекта 100137489
Отрадное, Родниковая ул.,
Инфраструктура поблизости
Базовая цена:
8 159 200 ₽
116 727 ₽/м²
Семейная ипотека
от 39 135 ₽/мес
Ипотека
от 95 439 ₽/мес
? Расчет цены приблизительный, за более точной информацией обращайтесь к менеджеру
Тип сделкиПервичная продажа
Общая площадь69.90 м²
Строительная площадь86.80 м²
Жилая площадь37.30 м²
Площадь кухни13.60 м²
Высота потолков2.74 м
ОтделкаПредчистовая отделка
СанузелСовмещенный
Балкон2 лоджии + терасса
КладовкаНет
ЛифтДа
Изолированные комнатыДа
Онлайн показДа



