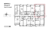
2-комнатная квартира, 84.10 м² 6/9 этаж ID объекта 100137523
Отрадное, Родниковая ул.,
Инфраструктура поблизости
Базовая цена:
7 653 100 ₽
93 673 ₽/м²
Семейная ипотека
от 36 707 ₽/мес
Ипотека
от 89 519 ₽/мес
? Расчет цены приблизительный, за более точной информацией обращайтесь к менеджеру
Тип сделкиПервичная продажа
Общая площадь81.70 м²
Строительная площадь84.10 м²
Жилая площадь37.40 м²
Площадь кухни24.20 м²
Высота потолков2.74 м
ОтделкаПредчистовая отделка
СанузелНесколько
КладовкаНет
ЛифтДа
Изолированные комнатыДа
Онлайн показДа



