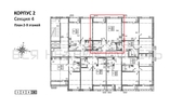
1-комнатная квартира, 65.80 м² 9/9 этаж ID объекта 100137543
Отрадное, Родниковая ул.,
Инфраструктура поблизости
Базовая цена:
5 987 800 ₽
93 706 ₽/м²
Семейная ипотека
от 28 720 ₽/мес
Ипотека
от 70 040 ₽/мес
? Расчет цены приблизительный, за более точной информацией обращайтесь к менеджеру
Тип сделкиПервичная продажа
Общая площадь63.90 м²
Строительная площадь65.80 м²
Жилая площадь19.20 м²
Площадь кухни29.80 м²
Высота потолков2.74 м
ОтделкаПредчистовая отделка
СанузелСовмещенный
КладовкаДа
ЛифтДа
Изолированные комнатыДа
Онлайн показДа



