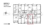
Квартиры-студии, 36.30 м² 9/9 этаж ID объекта 100137546
Отрадное, Родниковая ул.,
Инфраструктура поблизости
Базовая цена:
3 557 400 ₽
101 063 ₽/м²
Семейная ипотека
от 17 063 ₽/мес
Ипотека
от 41 611 ₽/мес
? Расчет цены приблизительный, за более точной информацией обращайтесь к менеджеру
Тип сделкиПервичная продажа
Общая площадь35.20 м²
Строительная площадь36.30 м²
Жилая площадь25.20 м²
Площадь кухни2.00 м²
Высота потолков2.74 м
ОтделкаПредчистовая отделка
СанузелСовмещенный
КладовкаНет
ЛифтДа
Изолированные комнатыДа
Онлайн показДа



