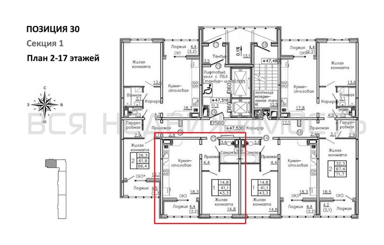
1-комнатная квартира, 43.30 м² 12/17 этаж ID объекта 100138408
Воронеж, Федора Тютчева ул., д. 107
Инфраструктура поблизости
Базовая цена:
4 013 909 ₽
97 662 ₽/м²
Семейная ипотека
от 19 252 ₽/мес
Ипотека
от 46 951 ₽/мес
? Расчет цены приблизительный, за более точной информацией обращайтесь к менеджеру
КорпусПозиция 30 очередь 3 секция 1
Срок сдачи2 кв 2027
Тип домаМонолитно-блочный
Этаж12/17
№ Квартиры43
Тип сделкиПервичная продажа
Общая площадь41.10 м²
Строительная площадь43.30 м²
Жилая площадь14.80 м²
Площадь кухни18.30 м²
Высота потолков2.56 м
ОтделкаЧистовая отделка
СанузелСовмещенный
КладовкаНет
ЛифтДа
Изолированные комнатыДа
Онлайн показДа



