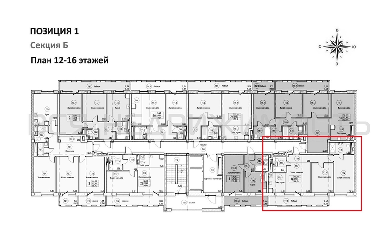
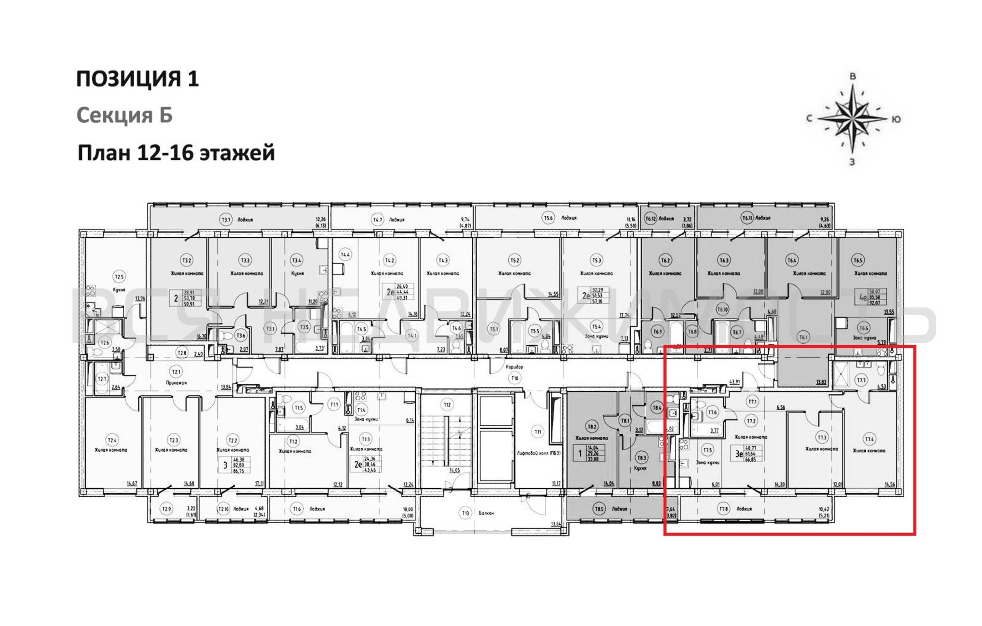
2-комнатная квартира, 66.85 м² 16/16 этаж ID объекта 100138721
Новая Усмань, Раздольная ул., д. 5
Инфраструктура поблизости
Базовая цена:
4 980 325 ₽
80 797 ₽/м²
Семейная ипотека
от 23 888 ₽/мес
Ипотека
от 58 256 ₽/мес
? Расчет цены приблизительный, за более точной информацией обращайтесь к менеджеру
Тип сделкиПервичная продажа
Общая площадь61.64 м²
Строительная площадь66.85 м²
Жилая площадь26.57 м²
Площадь кухни20.21 м²
Высота потолков2.70 м
ОтделкаПредчистовая отделка
СанузелНесколько
КладовкаНет
ЛифтДа
Изолированные комнатыДа
Онлайн показДа



