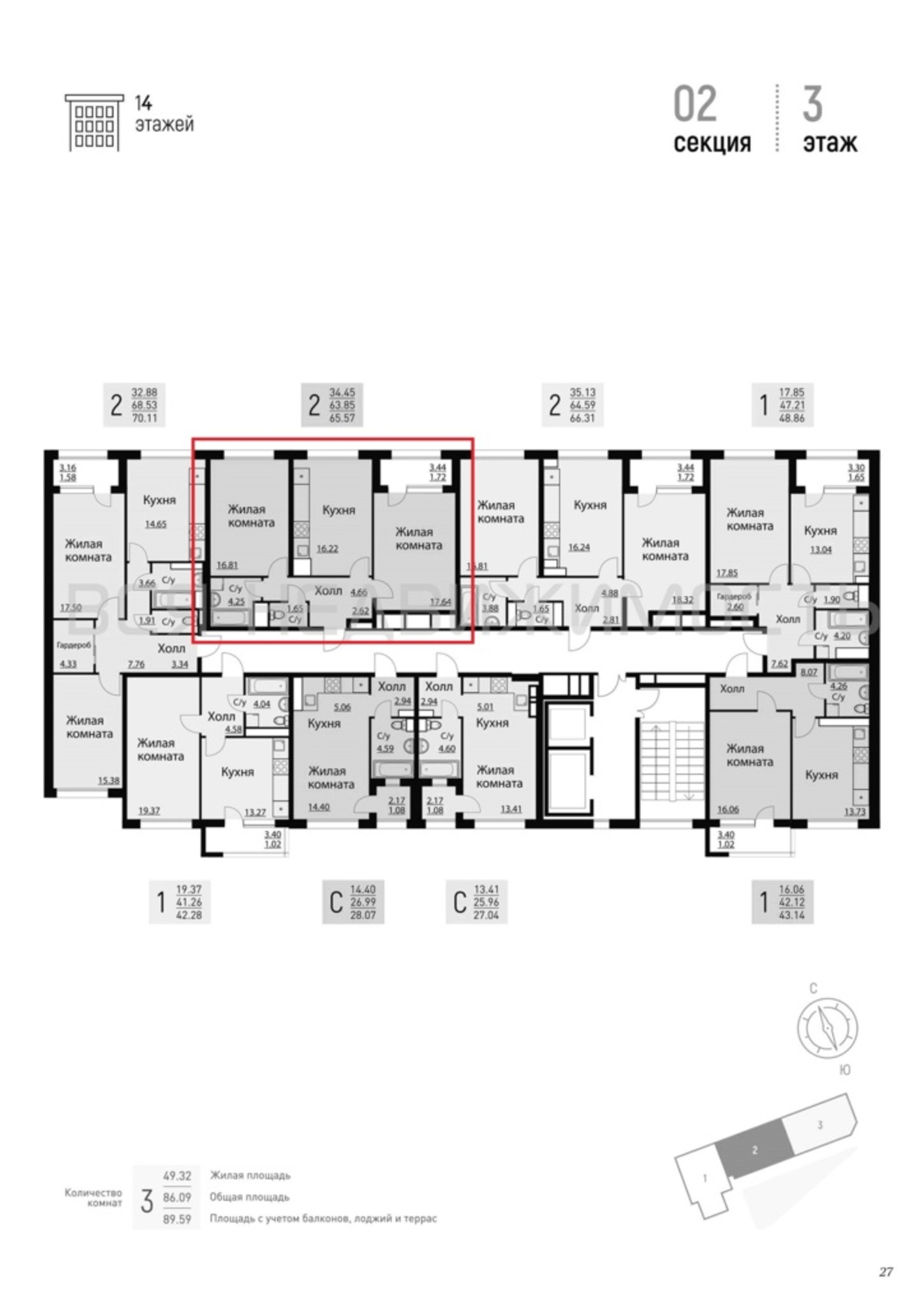
2-комнатная квартира, 64.61 м² 3/14 этаж ID объекта 77760
Воронеж, Ворошилова ул., д. 1
Инфраструктура поблизости
График стоимости
Базовая цена:
12 857 390 ₽
204 248 ₽/м²
Семейная ипотека
от 61 669 ₽/мес
Ипотека
от 150 395 ₽/мес
? Расчет цены приблизительный, за более точной информацией обращайтесь к менеджеру
Тип сделкиПервичная продажа
Общая площадь62.95 м²
Строительная площадь64.61 м²
Жилая площадь32.88 м²
Площадь кухни16.01 м²
Высота потолков2.72 м
ОтделкаЧерновая отделка
СанузелРаздельный
КладовкаНет
ЛифтДа
Изолированные комнатыДа
Онлайн показДа



