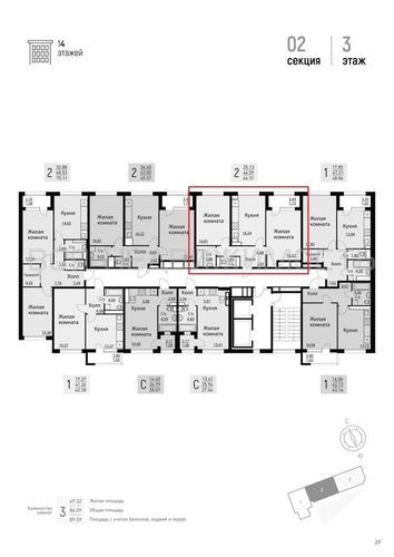
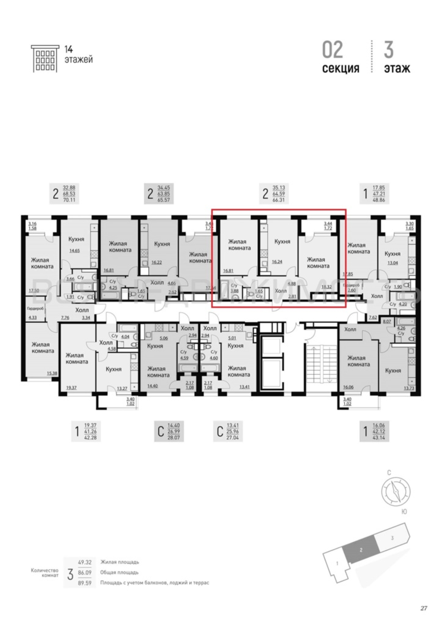
2-комнатная квартира, 65.37 м² 3/14 этаж ID объекта 77762
Воронеж, Ворошилова ул., д. 1
Инфраструктура поблизости
График стоимости
Цена за наличные:
10 756 143 ₽
168 830 ₽/м²
Базовая цена:
11 951 270 ₽
Семейная ипотека
от 51 591 ₽/мес
Ипотека
от 125 816 ₽/мес
? Расчет цены приблизительный, за более точной информацией обращайтесь к менеджеру
Тип сделкиПервичная продажа
Общая площадь63.71 м²
Строительная площадь65.37 м²
Жилая площадь33.09 м²
Площадь кухни15.97 м²
Высота потолков2.72 м
ОтделкаЧерновая отделка
СанузелРаздельный
КладовкаНет
ЛифтДа
Изолированные комнатыДа
Онлайн показДа



