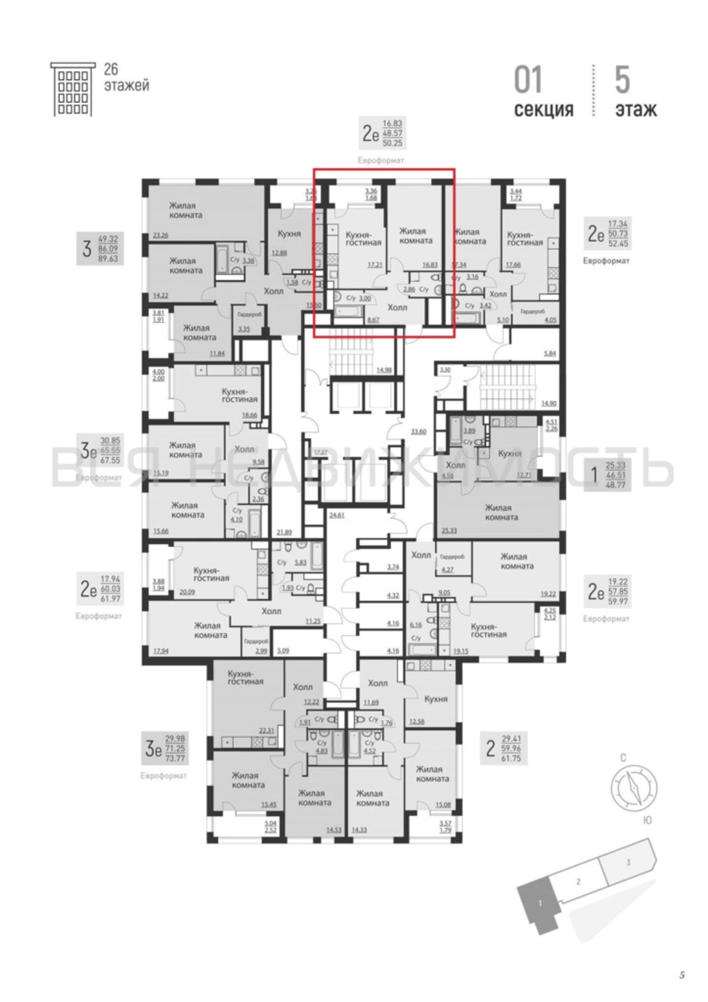
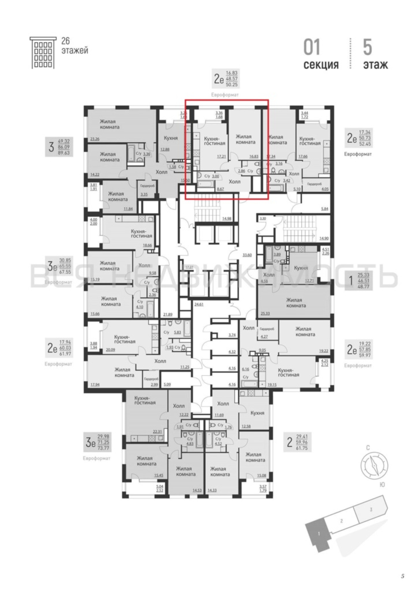
1-комнатная квартира, 51.14 м² 5/25 этаж ID объекта 77778
Воронеж, Ворошилова ул., д. 1
Инфраструктура поблизости
График стоимости
Базовая цена:
10 459 409 ₽
211 600 ₽/м²
Семейная ипотека
от 50 168 ₽/мес
Ипотека
от 122 345 ₽/мес
? Расчет цены приблизительный, за более точной информацией обращайтесь к менеджеру
Тип сделкиПервичная продажа
Общая площадь49.43 м²
Строительная площадь51.14 м²
Жилая площадь16.50 м²
Площадь кухни17.17 м²
Высота потолков2.72 м
ОтделкаЧерновая отделка
СанузелРаздельный
КладовкаНет
ЛифтДа
Изолированные комнатыДа
Онлайн показДа



