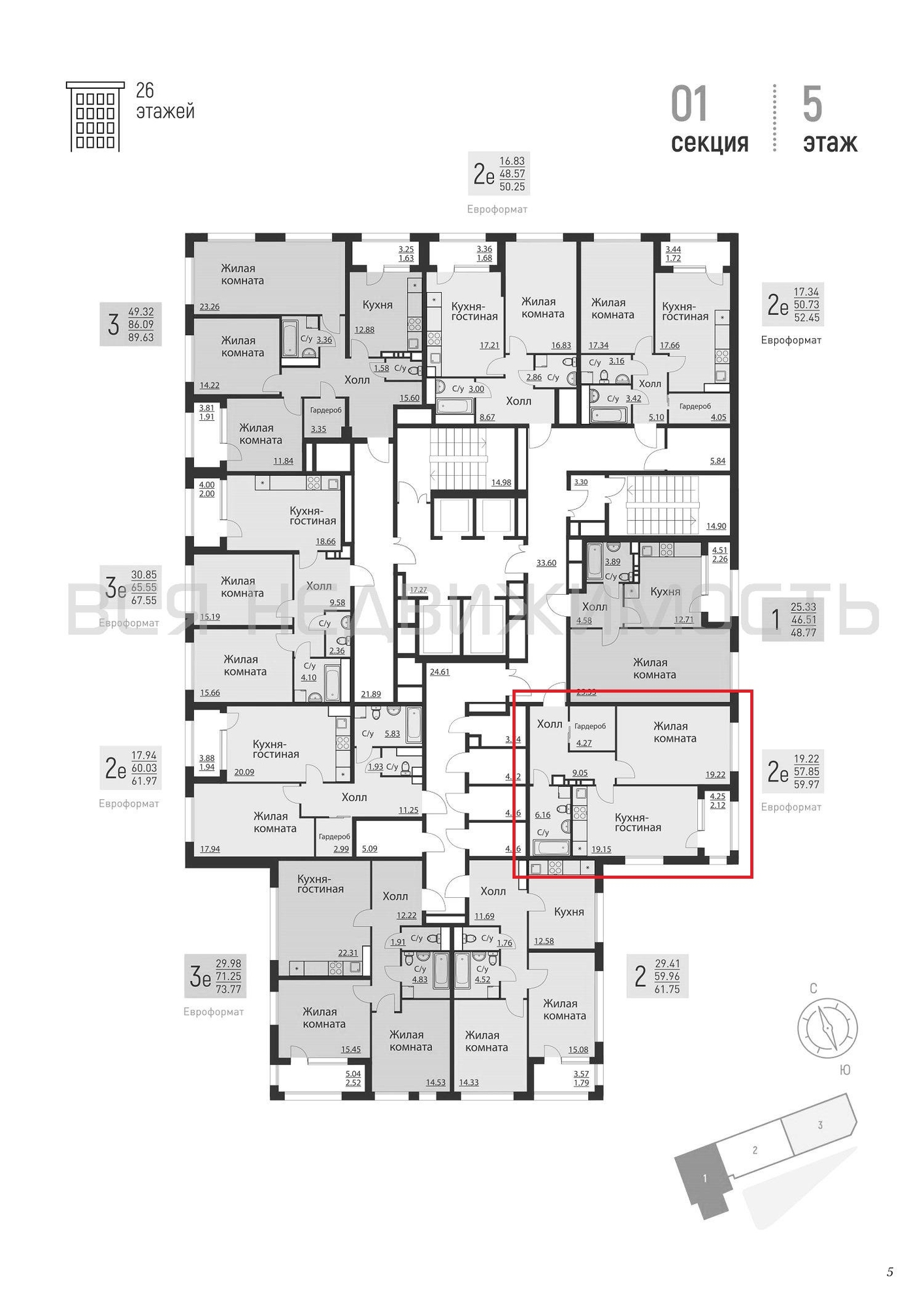
1-комнатная квартира, 58.41 м² 5/25 этаж ID объекта 77781
Воронеж, Ворошилова ул., д. 1
Инфраструктура поблизости
График стоимости
Базовая цена:
12 674 970 ₽
223 939 ₽/м²
Семейная ипотека
от 60 794 ₽/мес
Ипотека
от 148 261 ₽/мес
? Расчет цены приблизительный, за более точной информацией обращайтесь к менеджеру
Тип сделкиПервичная продажа
Общая площадь56.60 м²
Строительная площадь58.41 м²
Жилая площадь18.83 м²
Площадь кухни18.92 м²
Высота потолков2.72 м
ОтделкаЧерновая отделка
СанузелСовмещенный
КладовкаДа
ЛифтДа
Изолированные комнатыДа
Онлайн показДа



