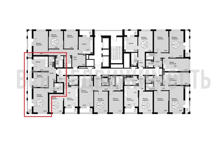
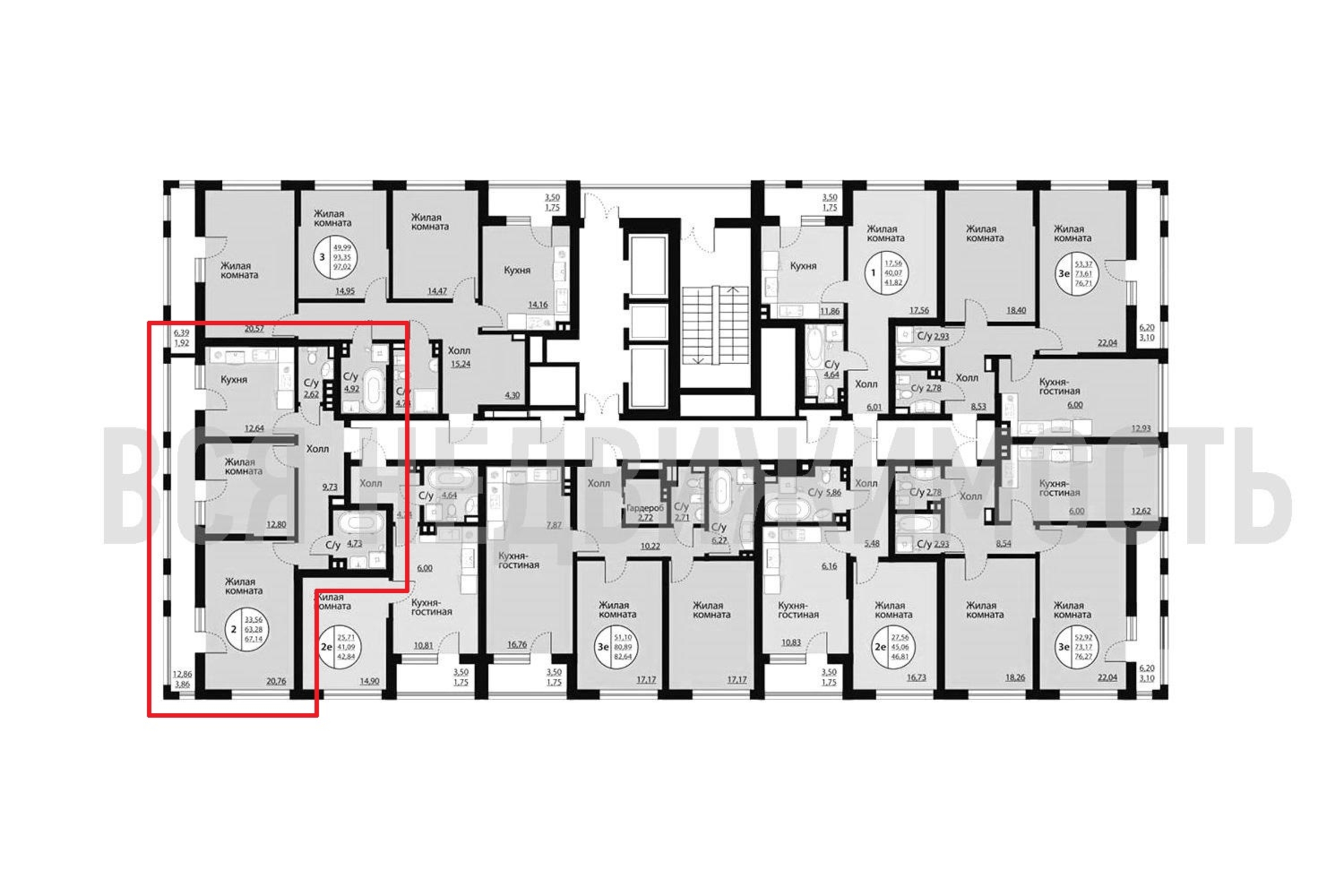
2-комнатная квартира, 67.14 м² 5/19 этаж ID объекта 100069316
Воронеж, Московский пр-кт, д. 132
Инфраструктура поблизости
График стоимости
Базовая цена:
10 786 712 ₽
170 460 ₽/м²
Семейная ипотека
от 51 737 ₽/мес
Ипотека
от 126 174 ₽/мес
? Расчет цены приблизительный, за более точной информацией обращайтесь к менеджеру
Тип сделкиПервичная продажа
Общая площадь63.28 м²
Строительная площадь67.14 м²
Жилая площадь33.56 м²
Площадь кухни12.64 м²
Высота потолков2.72 м
ОтделкаПредчистовая отделка
Покрытие полаНет
СанузелРаздельный
БалконБалкон
КладовкаНет
ЛифтДа
Изолированные комнатыДа
Онлайн показДа



