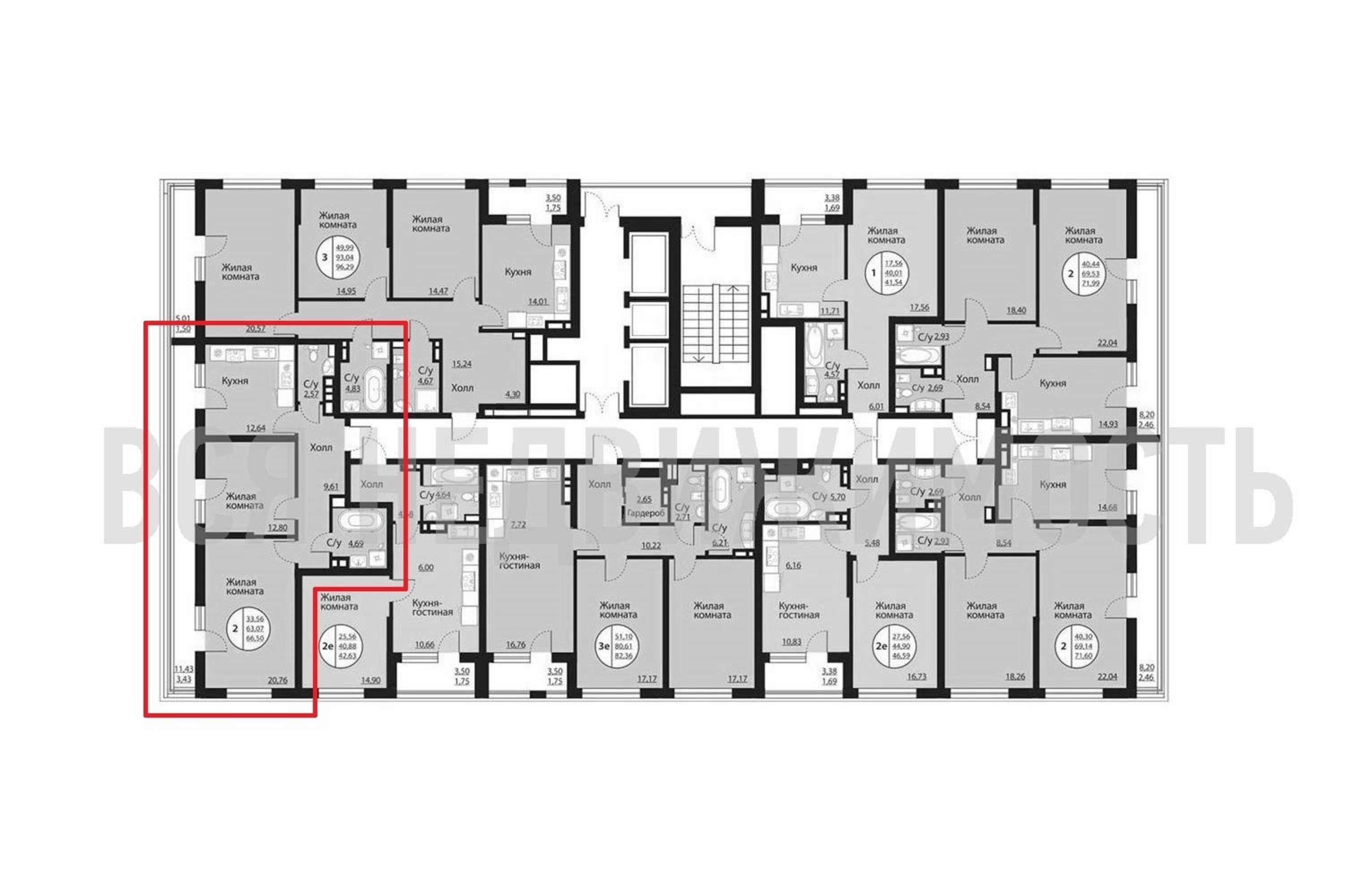
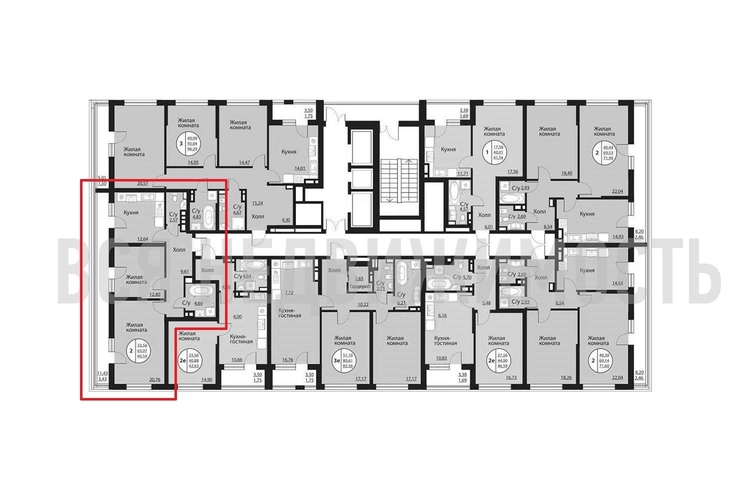
2-комнатная квартира, 66.50 м² 14/19 этаж ID объекта 100069388
Воронеж, Московский пр-кт, д. 132
Инфраструктура поблизости
Базовая цена:
10 801 462 ₽
171 261 ₽/м²
Семейная ипотека
от 51 808 ₽/мес
Ипотека
от 126 346 ₽/мес
? Расчет цены приблизительный, за более точной информацией обращайтесь к менеджеру
ЖКЖК Бунин
КорпусОчередь 3 секции 6-7
Срок сдачи2 кв 2025
Тип домаМонолитный
Этаж14/19
№ Квартиры673
Тип сделкиПервичная продажа
Общая площадь63.07 м²
Строительная площадь66.50 м²
Жилая площадь33.56 м²
Площадь кухни12.64 м²
Высота потолков2.72 м
ОтделкаПредчистовая отделка
Покрытие полаНет
СанузелРаздельный
БалконБалкон
КладовкаНет
ЛифтДа
Изолированные комнатыДа
Онлайн показДа



