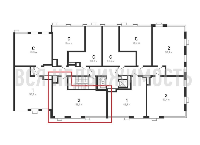
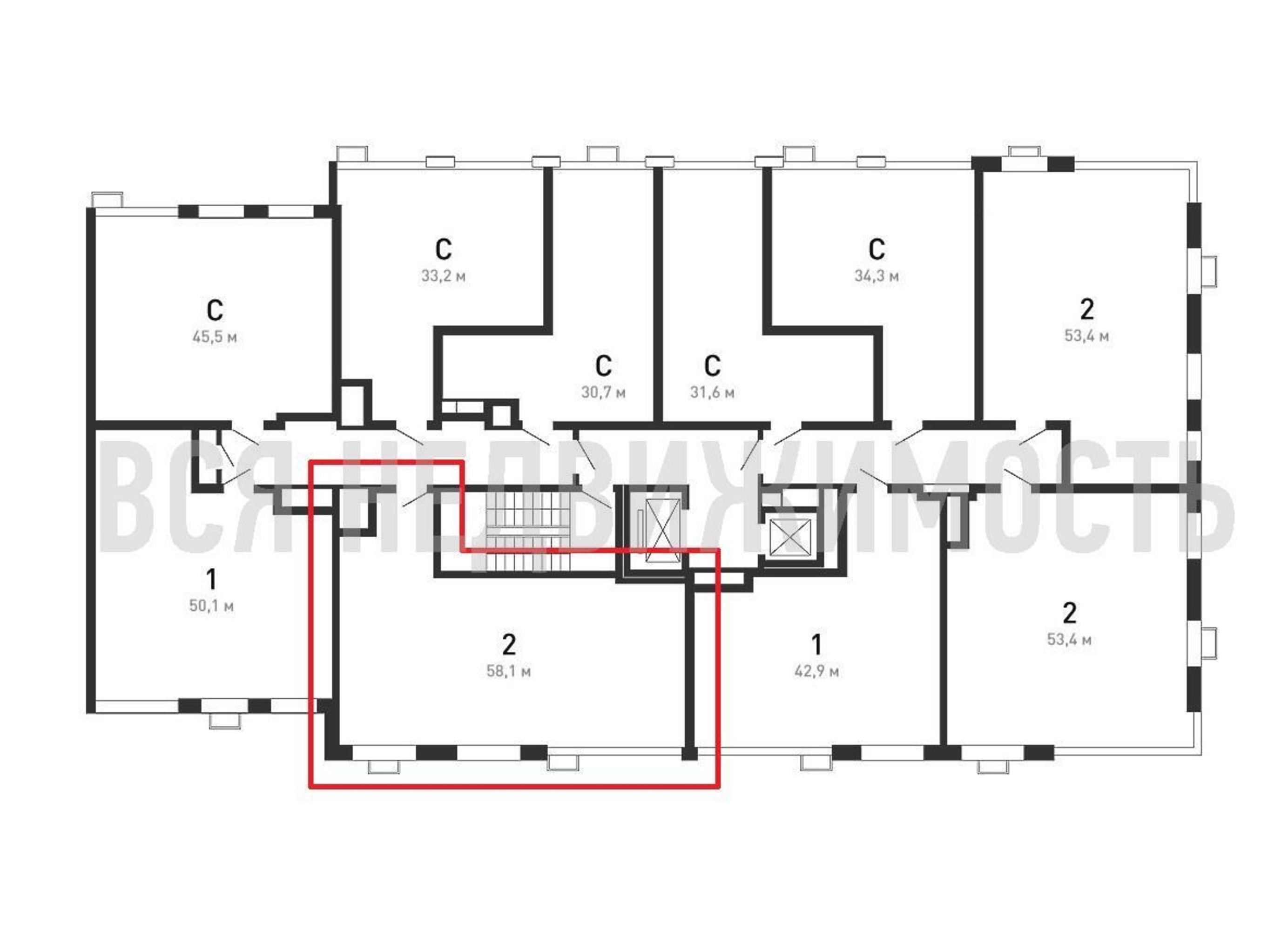
2-комнатная квартира, 58.10 м² 13/15 этаж ID объекта 100076060
Воронеж, Содружества бул., д. 5
Инфраструктура поблизости
График стоимости
Базовая цена:
7 670 304 ₽
138 955 ₽/м²
Семейная ипотека
от 36 790 ₽/мес
Ипотека
от 89 721 ₽/мес
? Расчет цены приблизительный, за более точной информацией обращайтесь к менеджеру
КорпусЭтап 1 секции 1-3
Срок сдачи2 кв 2025
Тип домаМонолитно-кирпичный
Этаж13/15
№ Квартиры307
Тип сделкиПервичная продажа
Общая площадь55.20 м²
Строительная площадь58.10 м²
Жилая площадь23.30 м²
Площадь кухни17.60 м²
Высота потолков2.74 м
ОтделкаПредчистовая отделка
СанузелСовмещенный
КладовкаНет
ЛифтДа
Изолированные комнатыДа
Онлайн показДа



