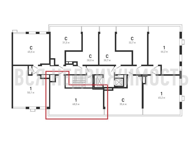
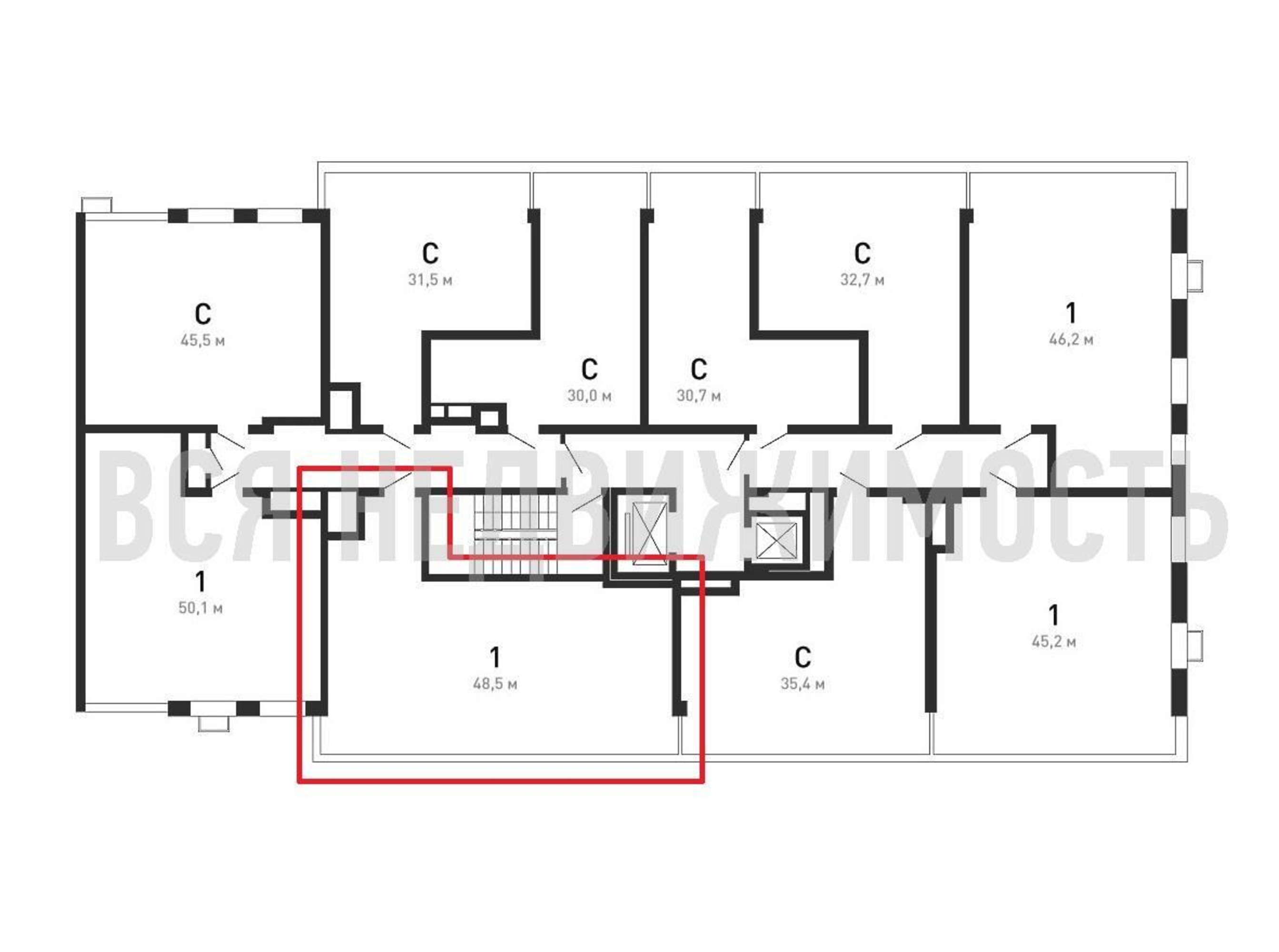
1-комнатная квартира, 48.50 м² 14/15 этаж ID объекта 100076120
Воронеж, Содружества бул., д. 5
Инфраструктура поблизости
График стоимости
Базовая цена:
6 565 861 ₽
155 589 ₽/м²
Семейная ипотека
от 31 493 ₽/мес
Ипотека
от 76 802 ₽/мес
? Расчет цены приблизительный, за более точной информацией обращайтесь к менеджеру
КорпусЭтап 1 секции 1-3
Срок сдачи2 кв 2025
Тип домаМонолитно-кирпичный
Этаж14/15
№ Квартиры317
Тип сделкиПервичная продажа
Общая площадь42.20 м²
Строительная площадь48.50 м²
Жилая площадь8.30 м²
Площадь кухни26.90 м²
Высота потолков2.74 м
ОтделкаПредчистовая отделка
СанузелСовмещенный
БалконЛоджия + терраса
КладовкаНет
ЛифтДа
Изолированные комнатыДа
Онлайн показДа



