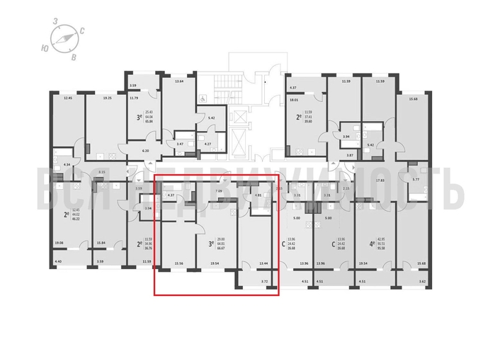
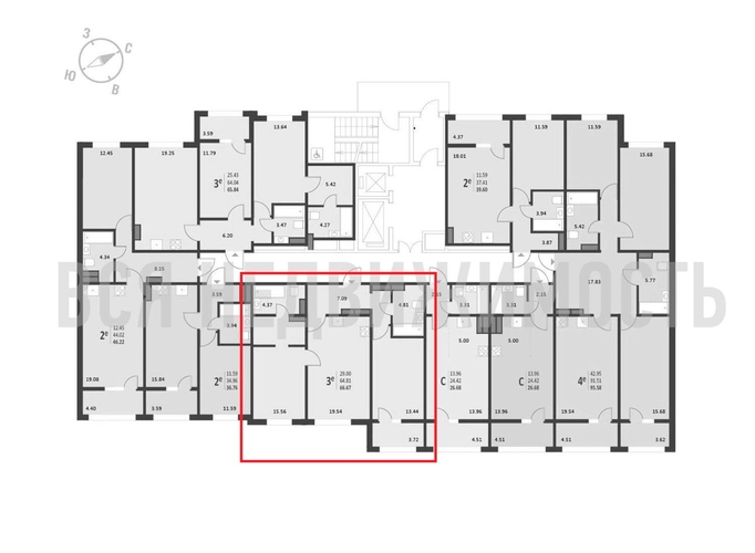
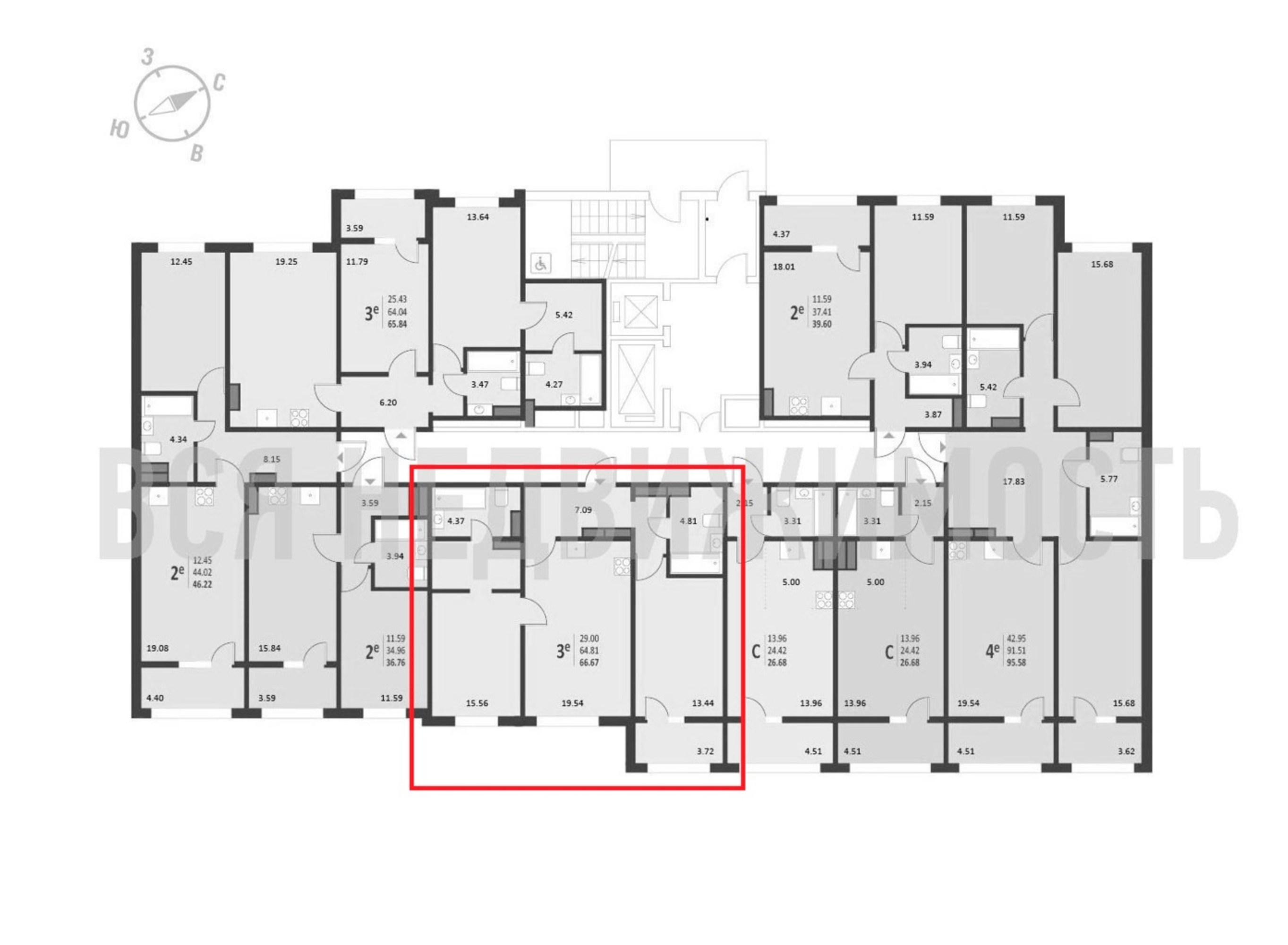
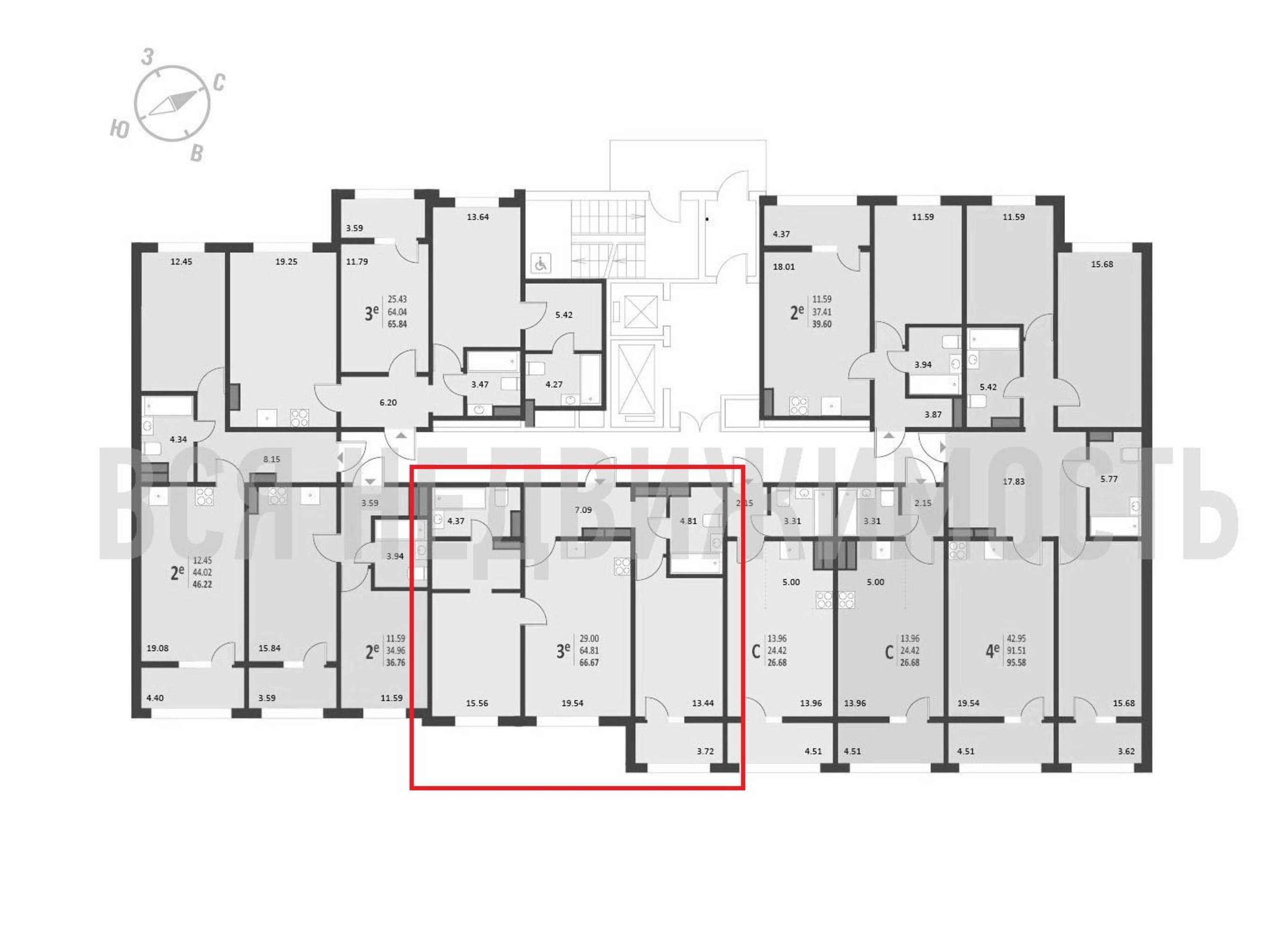
2-комнатная квартира, 66.62 м² 12/16 этаж ID объекта 100080478
Воронеж, Краснознаменная ул., д. 72
Инфраструктура поблизости
График стоимости
Базовая цена:
11 092 230 ₽
171 150 ₽/м²
Семейная ипотека
от 53 203 ₽/мес
Ипотека
от 129 747 ₽/мес
? Расчет цены приблизительный, за более точной информацией обращайтесь к менеджеру
КорпусЖД на Краснознаменной
Срок сдачи4 кв 2025
Тип домаПанельный
Этаж12/16
№ Квартиры176
Тип сделкиПервичная продажа
Общая площадь64.81 м²
Строительная площадь66.62 м²
Жилая площадь29.00 м²
Площадь кухни19.54 м²
Высота потолков2.64 м
ОтделкаЧерновая отделка
СанузелНесколько
КладовкаДа
ЛифтДа
Изолированные комнатыДа
Онлайн показДа



