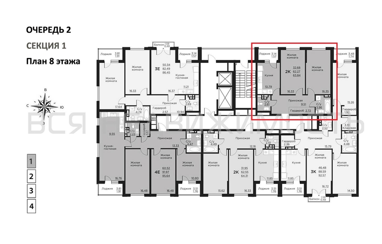
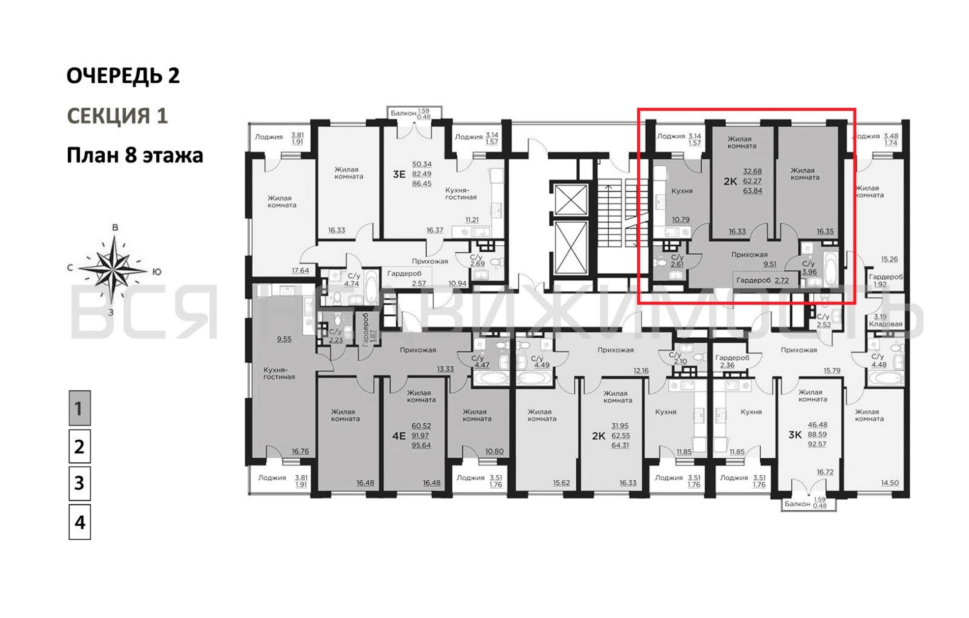
2-комнатная квартира, 63.84 м² 8/18 этаж ID объекта 100082540
Воронеж, Ломоносова ул., д. 116/25
Инфраструктура поблизости
График стоимости
Базовая цена:
10 603 824 ₽
170 288 ₽/м²
Семейная ипотека
от 50 860 ₽/мес
Ипотека
от 124 034 ₽/мес
? Расчет цены приблизительный, за более точной информацией обращайтесь к менеджеру
КорпусОчередь 2 секции 1-4
Срок сдачи2 кв 2026
Тип домаМонолитно-блочный
Этаж8/18
№ Квартиры33
Тип сделкиПервичная продажа
Общая площадь62.27 м²
Строительная площадь63.84 м²
Жилая площадь32.68 м²
Площадь кухни10.79 м²
Высота потолков2.72 м
ОтделкаПредчистовая отделка
Покрытие полаНет
СанузелРаздельный
КладовкаНет
ЛифтДа
Изолированные комнатыДа
Онлайн показДа



