1-комнатная квартира, 42.45 м² 1/18 этаж ID объекта 100082831
Воронеж, Ломоносова ул., д. 116/25
Инфраструктура поблизости
Базовая цена:
6 919 350 ₽
172 984 ₽/м²
Семейная ипотека
от 33 188 ₽/мес
Ипотека
от 80 937 ₽/мес
? Расчет цены приблизительный, за более точной информацией обращайтесь к менеджеру
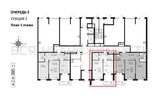
КорпусОчередь 2 секции 1-4
Срок сдачи2 кв 2026
Тип домаМонолитно-блочный
Этаж1/18
№ Квартиры89
Тип сделкиПервичная продажа
Общая площадь40.00 м²
Строительная площадь42.45 м²
Жилая площадь16.77 м²
Площадь кухни11.50 м²
Высота потолков2.72 м
ОтделкаПредчистовая отделка
Покрытие полаНет
СанузелРаздельный
БалконТерраса
КладовкаНет
ЛифтДа
Изолированные комнатыДа
Онлайн показДа

