2-комнатная квартира, 65.95 м² 1/18 этаж ID объекта 100082832
Воронеж, Ломоносова ул., д. 116/25
Инфраструктура поблизости
Базовая цена:
10 156 300 ₽
160 270 ₽/м²
Семейная ипотека
от 48 714 ₽/мес
Ипотека
от 118 800 ₽/мес
? Расчет цены приблизительный, за более точной информацией обращайтесь к менеджеру
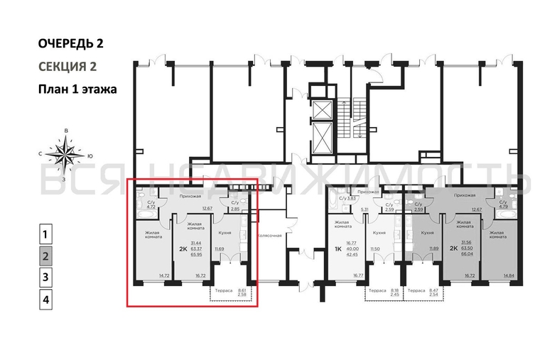
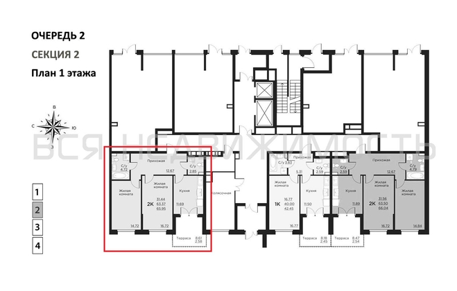
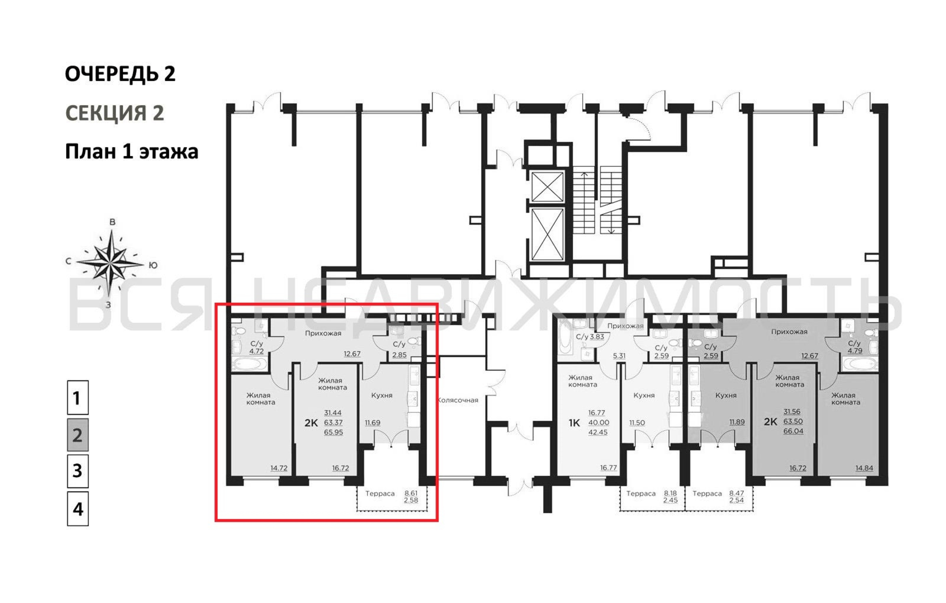
КорпусОчередь 2 секции 1-4
Срок сдачи2 кв 2026
Тип домаМонолитно-блочный
Этаж1/18
№ Квартиры90
Тип сделкиПервичная продажа
Общая площадь63.37 м²
Строительная площадь65.95 м²
Жилая площадь31.44 м²
Площадь кухни11.89 м²
Высота потолков2.72 м
ОтделкаПредчистовая отделка
Покрытие полаНет
СанузелНесколько
БалконТерраса
КладовкаНет
ЛифтДа
Изолированные комнатыДа
Онлайн показДа

