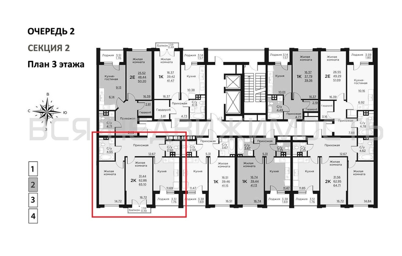
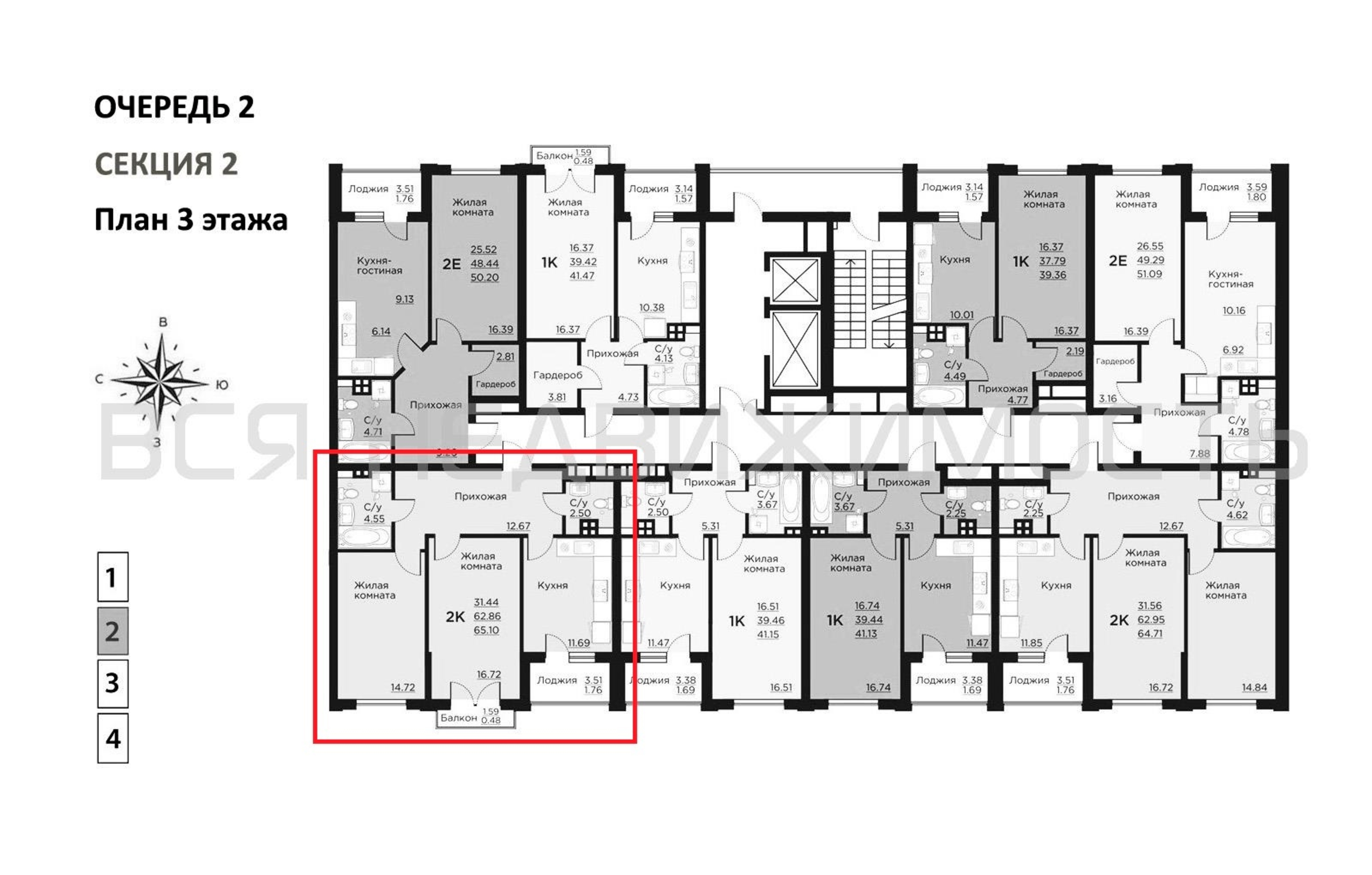
2-комнатная квартира, 65.10 м² 3/18 этаж ID объекта 100082838
Воронеж, Ломоносова ул., д. 116/25
Инфраструктура поблизости
Базовая цена:
9 699 900 ₽
154 334 ₽/м²
Семейная ипотека
от 46 525 ₽/мес
Ипотека
от 113 461 ₽/мес
? Расчет цены приблизительный, за более точной информацией обращайтесь к менеджеру
КорпусОчередь 2 секции 1-4
Срок сдачи2 кв 2026
Тип домаМонолитно-блочный
Этаж3/18
№ Квартиры104
Тип сделкиПервичная продажа
Общая площадь62.85 м²
Строительная площадь65.10 м²
Жилая площадь31.44 м²
Площадь кухни11.69 м²
Высота потолков2.72 м
ОтделкаПредчистовая отделка
Покрытие полаНет
СанузелНесколько
БалконЛоджия + франц. балкон
КладовкаНет
ЛифтДа
Изолированные комнатыДа
Онлайн показДа



