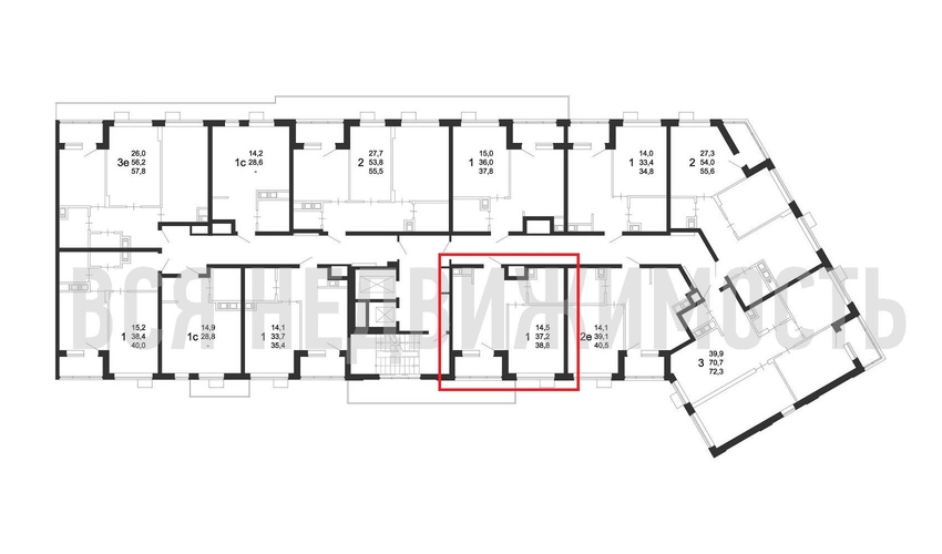
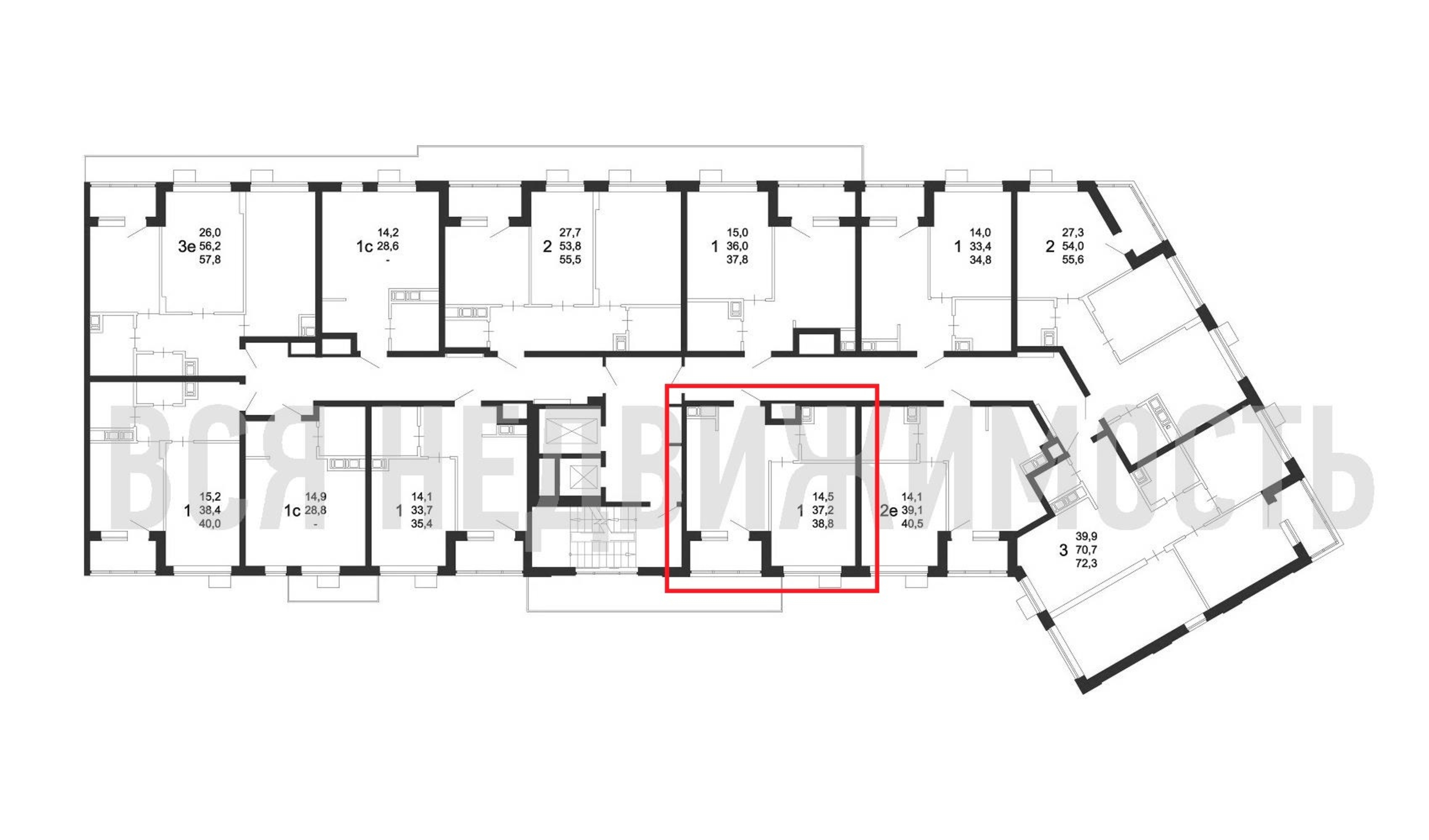
1-комнатная квартира, 38.80 м² 2/13 этаж ID объекта 100084767
Воронеж, Содружества б-р, д. 6
Инфраструктура поблизости
График стоимости
Базовая цена:
5 542 580 ₽
148 994 ₽/м²
Семейная ипотека
от 26 584 ₽/мес
Ипотека
от 64 832 ₽/мес
? Расчет цены приблизительный, за более точной информацией обращайтесь к менеджеру
ЖКЖК Ритм
КорпусПозиция 1 секции 3-4
Срок сдачи2 кв 2026
Тип домаМонолитно-кирпичный
Этаж2/13
№ Квартиры283
Тип сделкиПервичная продажа
Общая площадь37.20 м²
Строительная площадь38.80 м²
Жилая площадь14.50 м²
Площадь кухни13.30 м²
Высота потолков2.70 м
ОтделкаПредчистовая отделка
СанузелСовмещенный
КладовкаНет
ЛифтДа
Изолированные комнатыДа
Онлайн показДа



