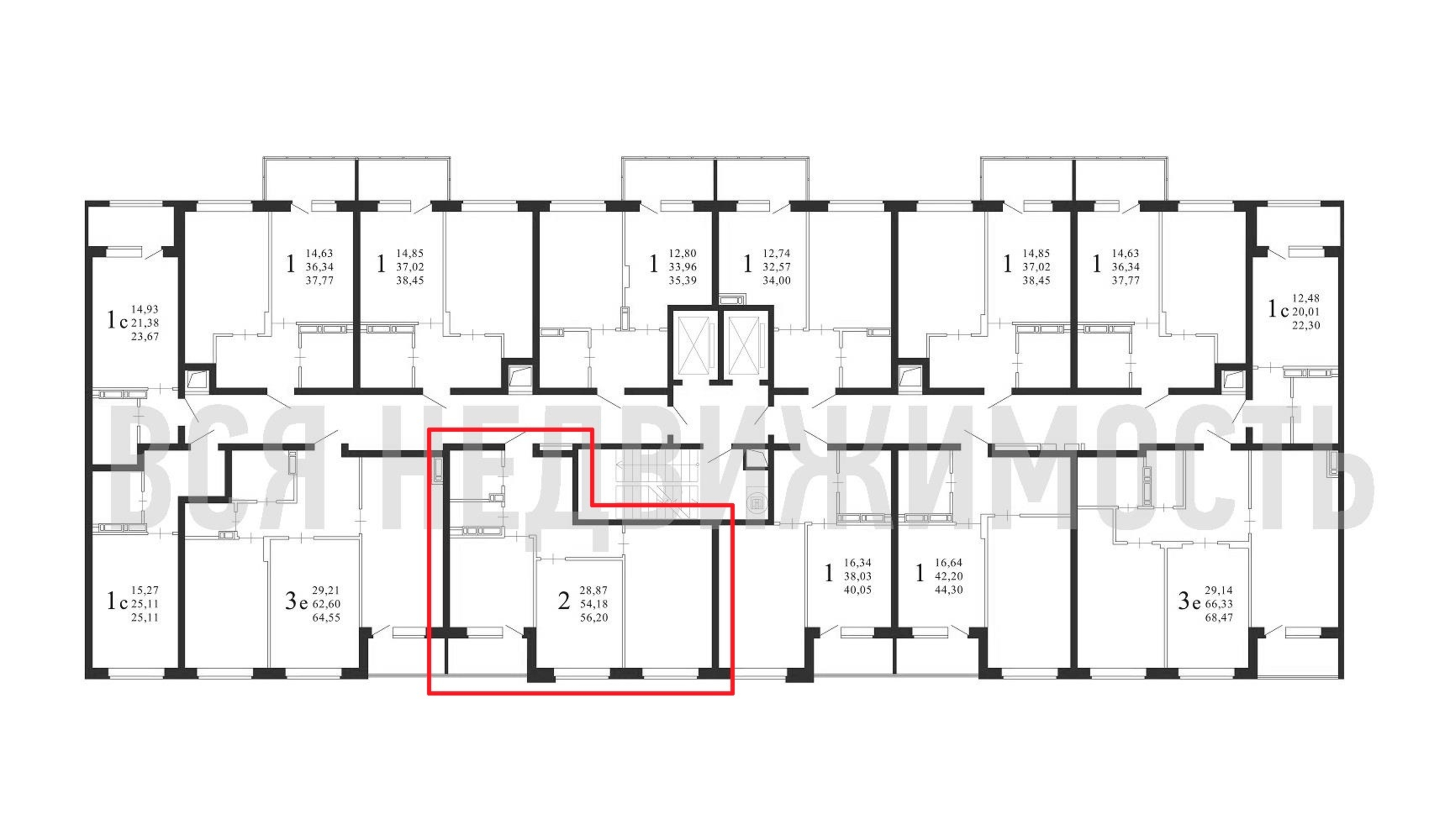
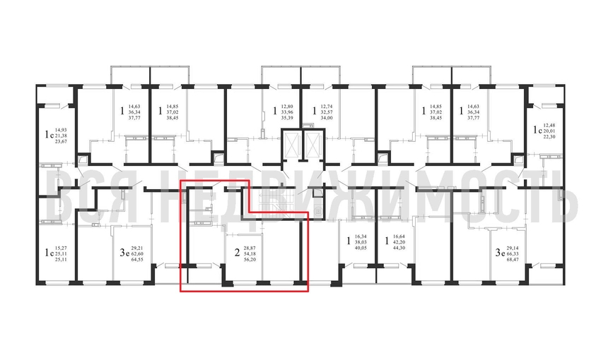
2-комнатная квартира, 56.20 м² 12/18 этаж ID объекта 100086803
Воронеж, Московский пр-кт, д. 62
Инфраструктура поблизости
Базовая цена:
8 542 400 ₽
157 667 ₽/м²
Семейная ипотека
от 40 973 ₽/мес
Ипотека
от 99 922 ₽/мес
? Расчет цены приблизительный, за более точной информацией обращайтесь к менеджеру
ЖКЖК Титул
КорпусЭтап 2 секция 2
Срок сдачи4 кв 2026
Тип домаМонолитно-кирпичный
Этаж12/18
№ Квартиры381
Тип сделкиПервичная продажа
Общая площадь54.18 м²
Строительная площадь56.20 м²
Жилая площадь28.87 м²
Площадь кухни9.90 м²
Высота потолков2.76 м
ОтделкаПредчистовая отделка
СанузелРаздельный
КладовкаНет
ЛифтДа
Изолированные комнатыДа
Онлайн показДа



