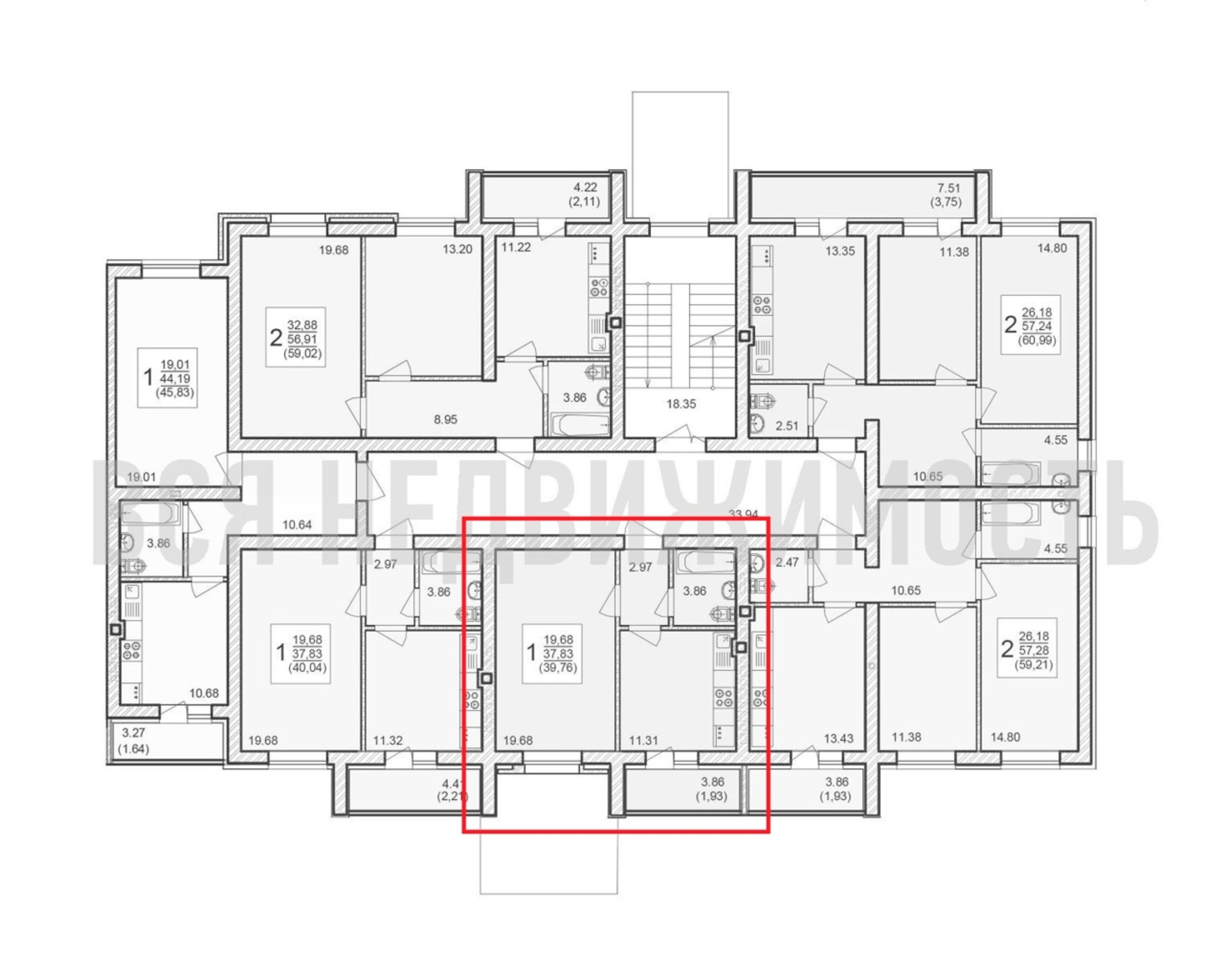
1-комнатная квартира, 39.76 м² 3/4 этаж ID объекта 100088369
с. Александровка, Акварельная ул.
Инфраструктура поблизости
График стоимости
Базовая цена:
4 970 000 ₽
131 377 ₽/м²
Семейная ипотека
от 23 838 ₽/мес
Ипотека
от 58 135 ₽/мес
? Расчет цены приблизительный, за более точной информацией обращайтесь к менеджеру
Тип сделкиПервичная продажа
Общая площадь37.83 м²
Строительная площадь39.76 м²
Жилая площадь19.68 м²
Площадь кухни11.31 м²
Высота потолков3.00 м
ОтделкаЧистовая отделка
Покрытие полаЛинолеум
СанузелСовмещенный
КладовкаНет
ЛифтНет
Изолированные комнатыДа
Онлайн показДа



