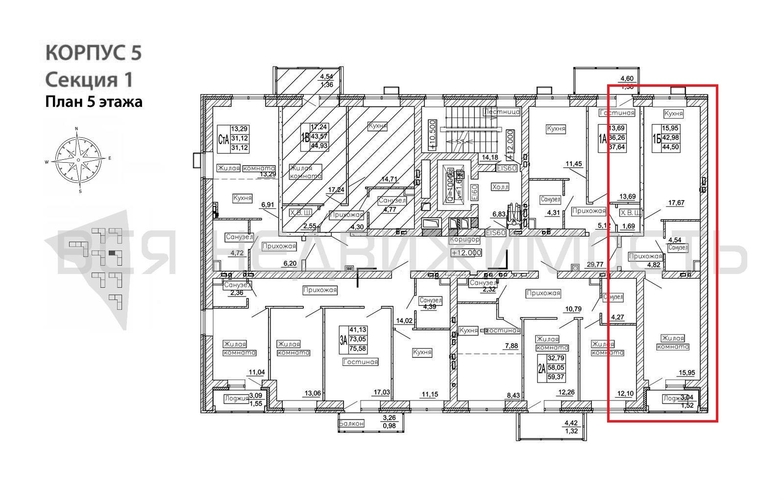
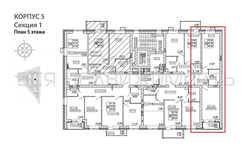
1-комнатная квартира, 44.50 м² 5/10 этаж ID объекта 100092504
п. Солнечный, Кленовая ул., д. 5
Инфраструктура поблизости
График стоимости
Базовая цена:
6 948 008 ₽
160 092 ₽/м²
Семейная ипотека
от 33 325 ₽/мес
Ипотека
от 81 272 ₽/мес
? Расчет цены приблизительный, за более точной информацией обращайтесь к менеджеру
КорпусОчередь 2 Позиция 5
Срок сдачи3 кв 2025
Тип домаМонолитный
Этаж5/10
№ Квартиры143
Тип сделкиПервичная продажа
Общая площадь43.40 м²
Строительная площадь44.50 м²
Жилая площадь15.95 м²
Площадь кухни17.67 м²
Высота потолков2.70 м
ОтделкаПредчистовая отделка
Покрытие полаЛинолеум
СанузелСовмещенный
КладовкаНет
ЛифтДа
Изолированные комнатыДа
Онлайн показДа



