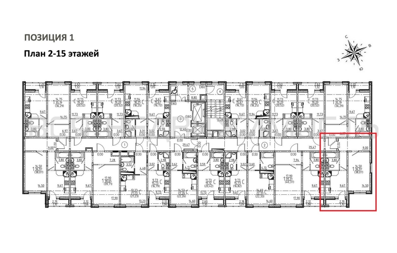
1-комнатная квартира, 38.07 м² 2/15 этаж ID объекта 100099309
Воронеж, Ростовская ул., д. 18а
Инфраструктура поблизости
График стоимости
Базовая цена:
4 130 595 ₽
111 728 ₽/м²
Семейная ипотека
от 19 812 ₽/мес
Ипотека
от 48 316 ₽/мес
? Расчет цены приблизительный, за более точной информацией обращайтесь к менеджеру
Тип сделкиПервичная продажа
Общая площадь36.97 м²
Строительная площадь38.07 м²
Жилая площадь14.50 м²
Площадь кухни9.67 м²
Высота потолков2.80 м
ОтделкаЧерновая отделка
СанузелСовмещенный
КладовкаНет
ЛифтДа
Изолированные комнатыДа
Онлайн показДа



