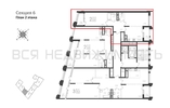
2-комнатная квартира, 64.20 м² 2/8 этаж ID объекта 100102141
Воронеж, Фридриха Энгельса ул., д. 88
Инфраструктура поблизости
График стоимости
Цена за наличные:
14 236 992 ₽
234 585 ₽/м²
Базовая цена:
17 796 240 ₽
Семейная ипотека
от 68 286 ₽/мес
Ипотека
от 166 532 ₽/мес
? Расчет цены приблизительный, за более точной информацией обращайтесь к менеджеру
КорпусЖД на Фридриха Энгельса
Срок сдачи4 кв 2027
Тип домаМонолитно-блочный
Этаж2/8
№ Квартиры159
Тип сделкиПервичная продажа
Общая площадь60.69 м²
Строительная площадь64.20 м²
Жилая площадь33.52 м²
Площадь кухни13.29 м²
Высота потолков3.10 м
ОтделкаЧерновая отделка
СанузелРаздельный
Балкон2 лоджии
КладовкаНет
ЛифтДа
Изолированные комнатыДа
Свободная планировкаДа
Онлайн показДа



