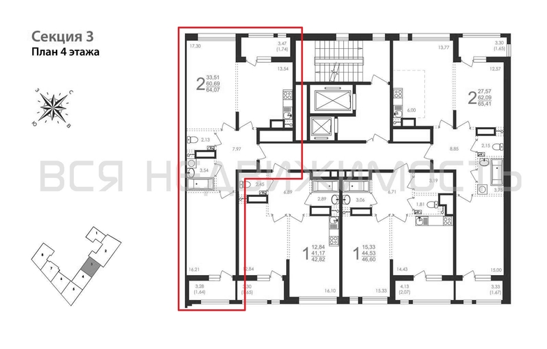
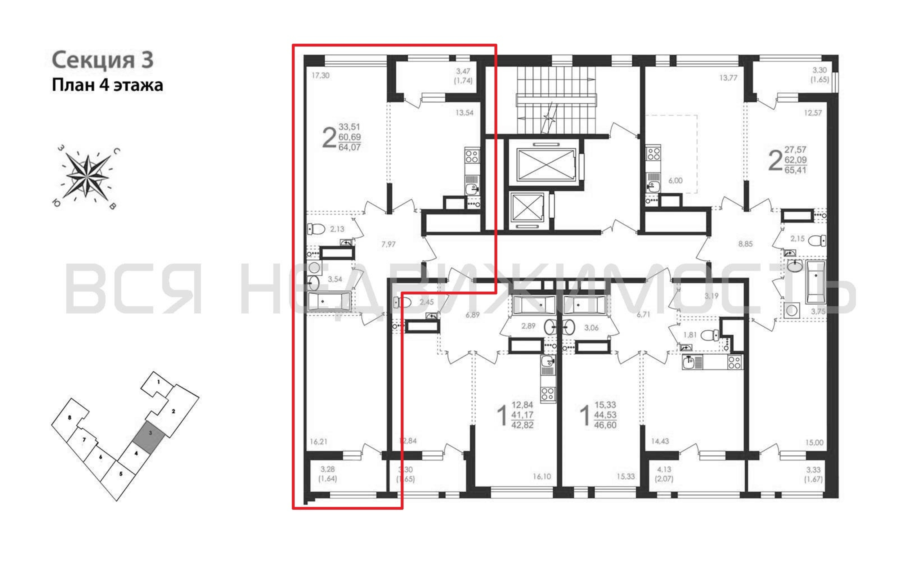
2-комнатная квартира, 64.07 м² 4/8 этаж ID объекта 100102460
Воронеж, Фридриха Энгельса ул., д. 88
Инфраструктура поблизости
График стоимости
Цена за наличные:
16 875 944 ₽
278 022 ₽/м²
Базовая цена:
17 760 204 ₽
Семейная ипотека
от 80 944 ₽/мес
Ипотека
от 197 400 ₽/мес
? Расчет цены приблизительный, за более точной информацией обращайтесь к менеджеру
КорпусЖД на Фридриха Энгельса
Срок сдачи4 кв 2027
Тип домаМонолитно-блочный
Этаж4/8
№ Квартиры87
Тип сделкиПервичная продажа
Общая площадь60.70 м²
Строительная площадь64.07 м²
Жилая площадь33.51 м²
Площадь кухни13.54 м²
Высота потолков3.10 м
ОтделкаЧерновая отделка
СанузелРаздельный
Балкон2 лоджии
КладовкаНет
ЛифтДа
Изолированные комнатыДа
Свободная планировкаДа
Онлайн показДа



