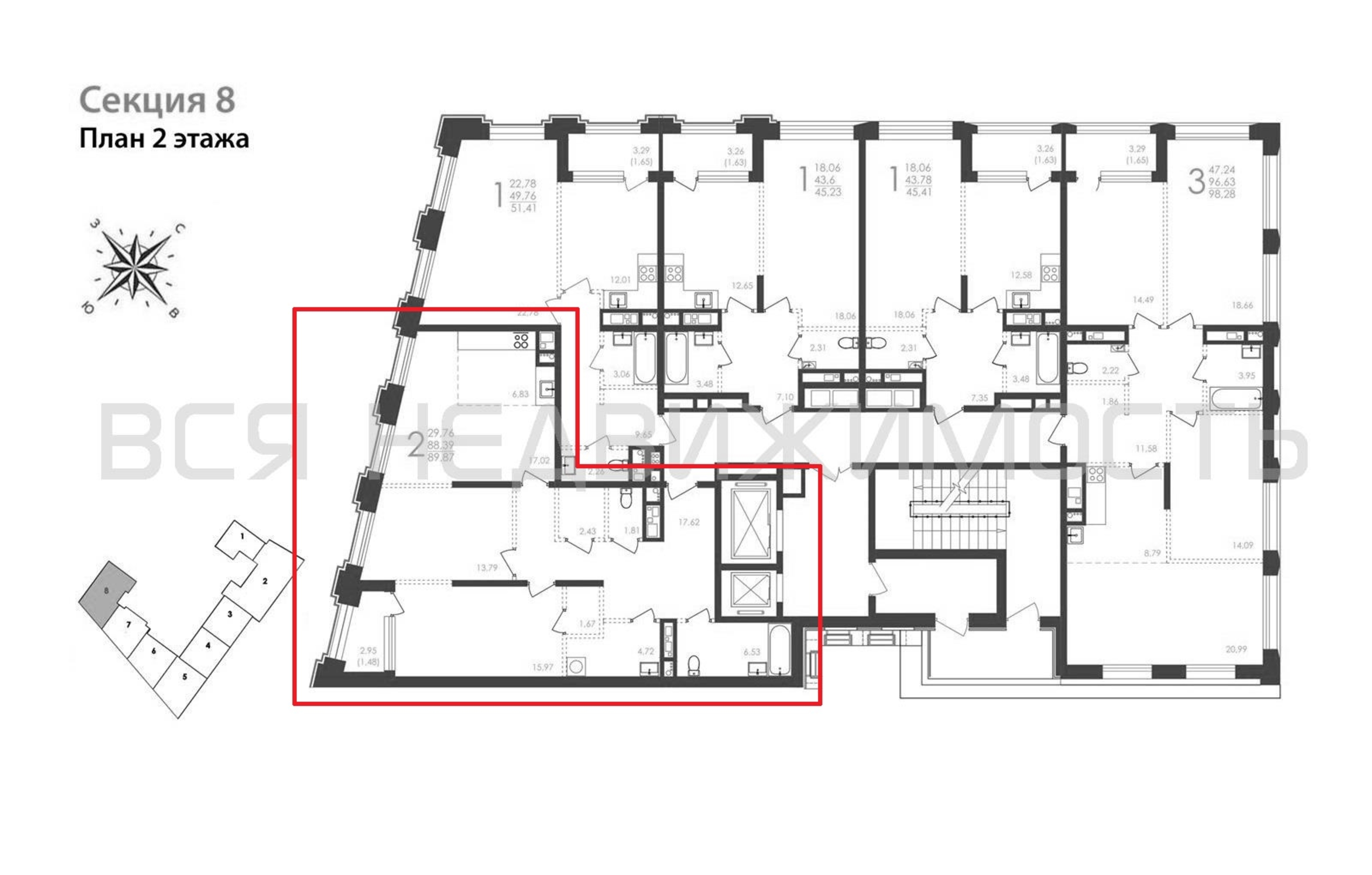
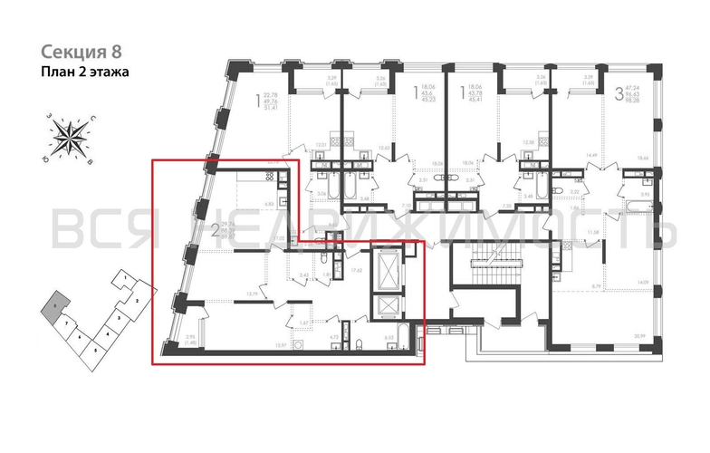
2-комнатная квартира, 89.87 м² 2/17 этаж ID объекта 100102191
Воронеж, Фридриха Энгельса ул., д. 88
Инфраструктура поблизости
График стоимости
Цена за наличные:
23 345 685 ₽
264 121 ₽/м²
Базовая цена:
24 570 458 ₽
Семейная ипотека
от 111 975 ₽/мес
Ипотека
от 273 078 ₽/мес
? Расчет цены приблизительный, за более точной информацией обращайтесь к менеджеру
КорпусЖД на Фридриха Энгельса
Срок сдачи4 кв 2027
Тип домаМонолитно-блочный
Этаж2/17
№ Квартиры230
Тип сделкиПервичная продажа
Общая площадь88.39 м²
Строительная площадь89.87 м²
Жилая площадь29.76 м²
Площадь кухни23.85 м²
Высота потолков3.10 м
ОтделкаЧерновая отделка
СанузелНесколько
КладовкаНет
ЛифтДа
Изолированные комнатыДа
Свободная планировкаДа
Онлайн показДа



