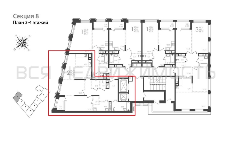
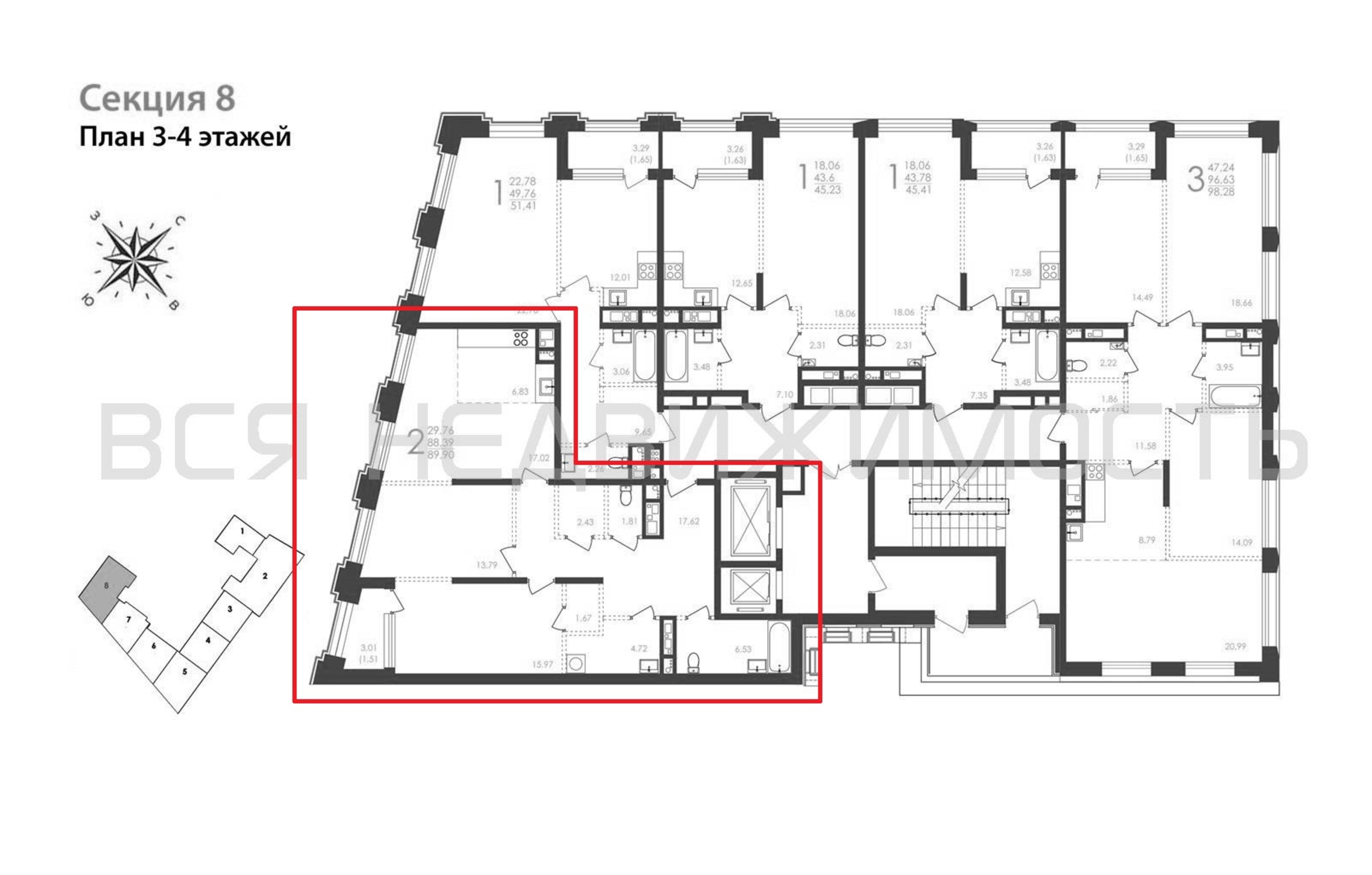
2-комнатная квартира, 89.90 м² 4/17 этаж ID объекта 100102200
Воронеж, Фридриха Энгельса ул., д. 88
Инфраструктура поблизости
График стоимости
Цена за наличные:
23 438 882 ₽
265 176 ₽/м²
Базовая цена:
24 668 560 ₽
Семейная ипотека
от 112 422 ₽/мес
Ипотека
от 274 168 ₽/мес
? Расчет цены приблизительный, за более точной информацией обращайтесь к менеджеру
КорпусЖД на Фридриха Энгельса
Срок сдачи4 кв 2027
Тип домаМонолитно-блочный
Этаж4/17
№ Квартиры240
Тип сделкиПервичная продажа
Общая площадь88.39 м²
Строительная площадь89.90 м²
Жилая площадь29.76 м²
Площадь кухни23.85 м²
Высота потолков3.10 м
ОтделкаЧерновая отделка
СанузелНесколько
КладовкаНет
ЛифтДа
Изолированные комнатыДа
Свободная планировкаДа
Онлайн показДа



