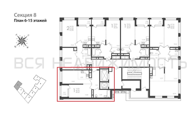
1-комнатная квартира, 48.60 м² 9/17 этаж ID объекта 100102246
Воронеж, Фридриха Энгельса ул., д. 88
Инфраструктура поблизости
График стоимости
Цена за наличные:
13 180 668 ₽
280 679 ₽/м²
Базовая цена:
13 870 440 ₽
Семейная ипотека
от 63 220 ₽/мес
Ипотека
от 154 176 ₽/мес
? Расчет цены приблизительный, за более точной информацией обращайтесь к менеджеру
КорпусЖД на Фридриха Энгельса
Срок сдачи4 кв 2027
Тип домаМонолитно-блочный
Этаж9/17
№ Квартиры265
Тип сделкиПервичная продажа
Общая площадь46.96 м²
Строительная площадь48.60 м²
Жилая площадь14.83 м²
Площадь кухни18.59 м²
Высота потолков3.10 м
ОтделкаЧерновая отделка
СанузелСовмещенный
КладовкаНет
ЛифтДа
Изолированные комнатыДа
Свободная планировкаДа
Онлайн показДа



