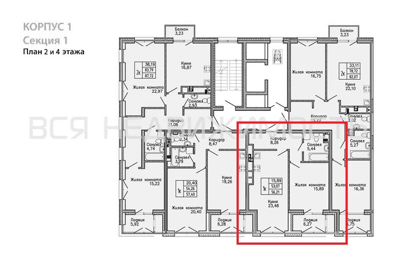
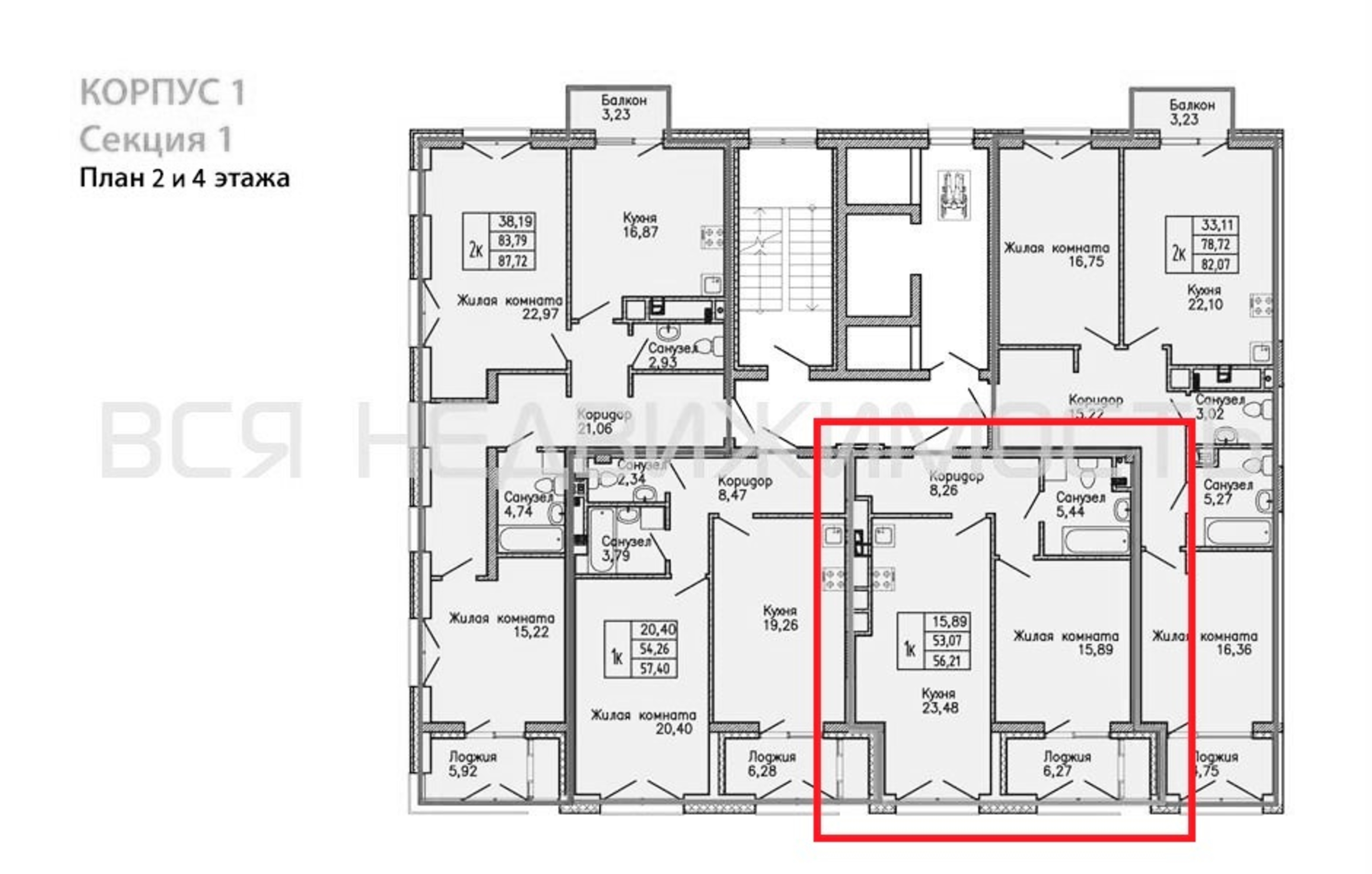
1-комнатная квартира, 56.21 м² 2/9 этаж ID объекта 100094301
Воронеж, Революции 1905 года ул., д. 14
Инфраструктура поблизости
График стоимости
Базовая цена:
13 835 960 ₽
260 712 ₽/м²
Семейная ипотека
от 66 363 ₽/мес
Ипотека
от 161 841 ₽/мес
? Расчет цены приблизительный, за более точной информацией обращайтесь к менеджеру
КорпусКлубный дом 905
Срок сдачи4 кв 2026
Тип домаМонолитно-кирпичный
Этаж2/9
№ Квартиры2
Тип сделкиПервичная продажа
Общая площадь53.07 м²
Строительная площадь56.21 м²
Жилая площадь15.89 м²
Площадь кухни23.48 м²
Высота потолков2.72 м
ОтделкаПредчистовая отделка
СанузелСовмещенный
КладовкаНет
ЛифтДа
Изолированные комнатыДа
Онлайн показДа



