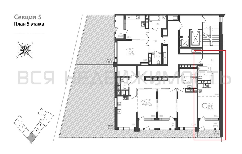
Квартиры-студии, 34.56 м² 5/8 этаж ID объекта 100102328
Воронеж, Фридриха Энгельса ул., д. 88
Инфраструктура поблизости
График стоимости
Цена за наличные:
10 056 908 ₽
319 978 ₽/м²
Базовая цена:
10 582 272 ₽
Семейная ипотека
от 48 237 ₽/мес
Ипотека
от 117 637 ₽/мес
? Расчет цены приблизительный, за более точной информацией обращайтесь к менеджеру
КорпусЖД на Фридриха Энгельса
Срок сдачи4 кв 2027
Тип домаМонолитно-блочный
Этаж5/8
№ Квартиры145
Тип сделкиПервичная продажа
Общая площадь31.43 м²
Строительная площадь34.56 м²
Жилая площадь18.56 м²
Площадь кухни3.00 м²
Высота потолков3.10 м
ОтделкаЧерновая отделка
СанузелСовмещенный
БалконЛоджия + терраса
КладовкаНет
ЛифтДа
Изолированные комнатыДа
Свободная планировкаДа
Онлайн показДа



