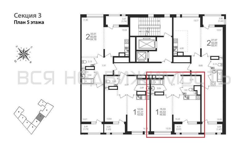
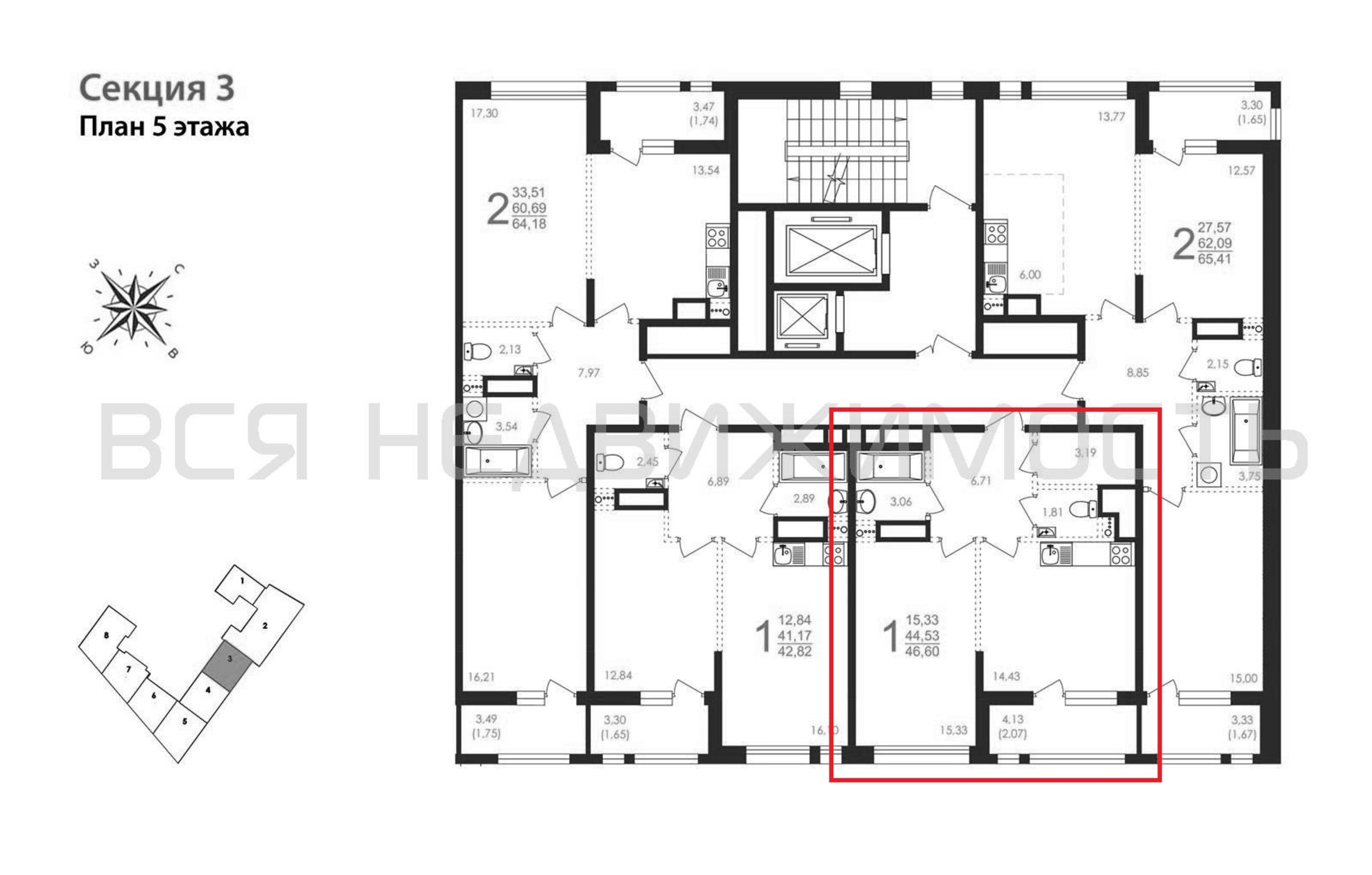
1-комнатная квартира, 46.60 м² 5/8 этаж ID объекта 100102462
Воронеж, Фридриха Энгельса ул., д. 88
Инфраструктура поблизости
График стоимости
Цена за наличные:
12 545 441 ₽
281 730 ₽/м²
Базовая цена:
13 201 780 ₽
Семейная ипотека
от 60 173 ₽/мес
Ипотека
от 146 746 ₽/мес
? Расчет цены приблизительный, за более точной информацией обращайтесь к менеджеру
КорпусЖД на Фридриха Энгельса
Срок сдачи4 кв 2027
Тип домаМонолитно-блочный
Этаж5/8
№ Квартиры89
Тип сделкиПервичная продажа
Общая площадь44.53 м²
Строительная площадь46.60 м²
Жилая площадь15.33 м²
Площадь кухни14.43 м²
Высота потолков3.10 м
ОтделкаЧерновая отделка
СанузелРаздельный
КладовкаДа
ЛифтДа
Изолированные комнатыДа
Свободная планировкаДа
Онлайн показДа



