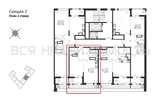
1-комнатная квартира, 44.52 м² 2/8 этаж ID объекта 100102451
Воронеж, Фридриха Энгельса ул., д. 88
Инфраструктура поблизости
График стоимости
Цена за наличные:
10 606 445 ₽
257 626 ₽/м²
Базовая цена:
13 258 056 ₽
Семейная ипотека
от 50 873 ₽/мес
Ипотека
от 124 065 ₽/мес
? Расчет цены приблизительный, за более точной информацией обращайтесь к менеджеру
КорпусЖД на Фридриха Энгельса
Срок сдачи4 кв 2027
Тип домаМонолитно-блочный
Этаж2/8
№ Квартиры78
Тип сделкиПервичная продажа
Общая площадь41.17 м²
Строительная площадь44.52 м²
Жилая площадь12.84 м²
Площадь кухни16.10 м²
Высота потолков3.10 м
ОтделкаЧерновая отделка
СанузелРаздельный
БалконЛоджия + терраса
КладовкаНет
ЛифтДа
Изолированные комнатыДа
Свободная планировкаДа
Онлайн показДа



