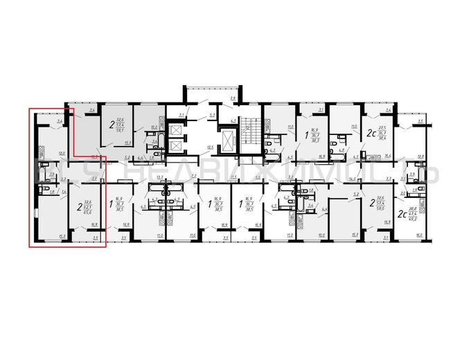
2-комнатная квартира, 65.60 м² 15/20 этаж ID объекта 100106037
Воронеж, Пескова ул., д. 8
Инфраструктура поблизости
График стоимости
Цена за наличные:
9 028 933 ₽
145 393 ₽/м²
Базовая цена:
10 486 550 ₽
Семейная ипотека
от 43 306 ₽/мес
Ипотека
от 105 613 ₽/мес
? Расчет цены приблизительный, за более точной информацией обращайтесь к менеджеру
КорпусПозиция 7
Срок сдачи4 кв 2025
Тип домаПанельный
Этаж15/20
№ Квартиры669
Тип сделкиПервичная продажа
Общая площадь62.10 м²
Строительная площадь65.60 м²
Жилая площадь32.60 м²
Площадь кухни12.00 м²
Высота потолков2.75 м
ОтделкаЧистовая отделка
Покрытие полаЛаминат
СанузелРаздельный
КладовкаНет
ЛифтДа
Изолированные комнатыДа
Онлайн показДа



